CAD频道
CAD图库
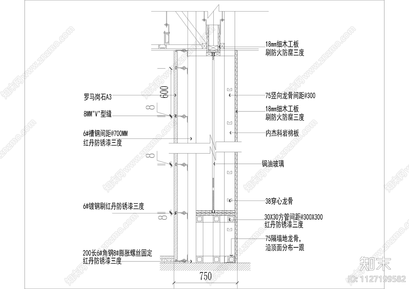
钢架分割大样图 施工图 节点 结构节点图
1/
4
Previous
Next
钢架分割大样图CAD下载
ID: 1127199582
复制
上传作者
xin图
上传时间
2022-12-29
文件大小
2.56M
设计风格:
--
CAD版本:
CAD2004
包含文件:
CAD
授权
普通
立即下载
收藏
分享
举报
相关推荐
综合
结构节点图
钢结构节点
桁架
混凝土节点
幕墙结构节点
转换层
其他结构设计