CAD频道
CAD图库
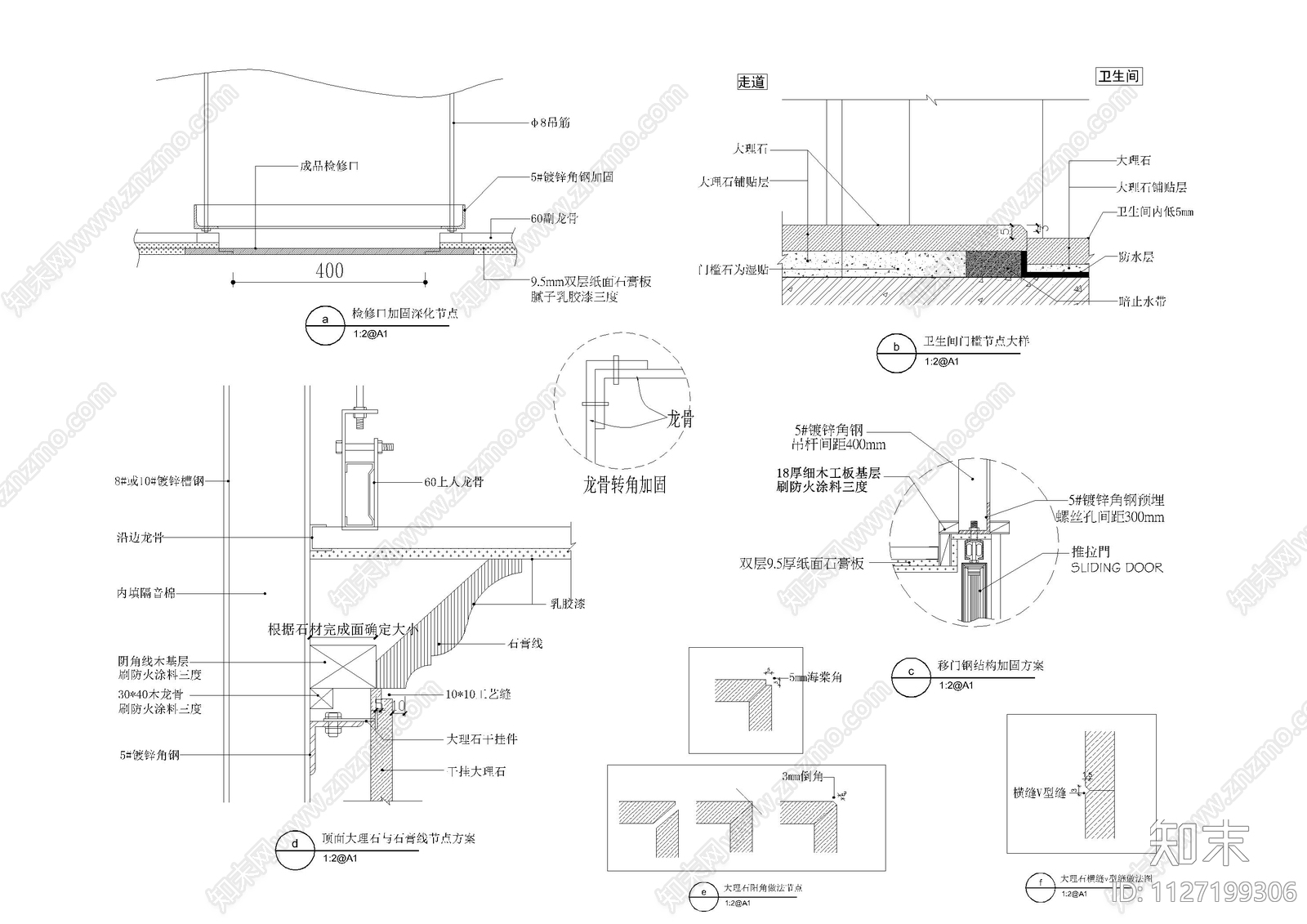
石材干挂大样图 施工图 墙面节点
1/
4
Previous
Next
石材干挂大样图CAD下载
ID: 1127199306
复制
上传作者
xin图
上传时间
2022-12-29
文件大小
2.53M
设计风格:
--
CAD版本:
CAD2004
包含文件:
CAD
授权
普通
立即下载
收藏
分享
举报
相关推荐
综合
墙面节点
背景墙节点
轻钢龙骨隔墙
壁龛节点
隔音墙节点