CAD频道
CAD图库
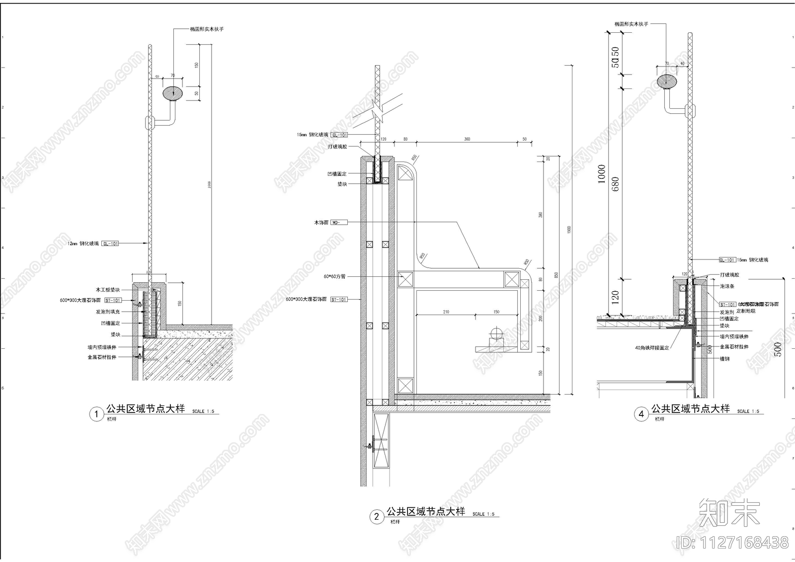
楼梯栏杆玻璃与大理石节点 施工图
1/
4
Previous
Next
楼梯栏杆玻璃与大理石节点CAD下载
ID: 1127168438
复制
上传作者
小趴菜园
上传时间
2022-12-28
文件大小
1.27M
设计风格:
--
CAD版本:
CAD2004
包含文件:
CAD
授权
独家
立即下载
收藏
分享
举报
相关推荐
综合
景观小品
栏杆
亭子
廊架
景墙
综合景观小品
雨棚
围墙
挡土墙
入口