CAD频道
CAD图库
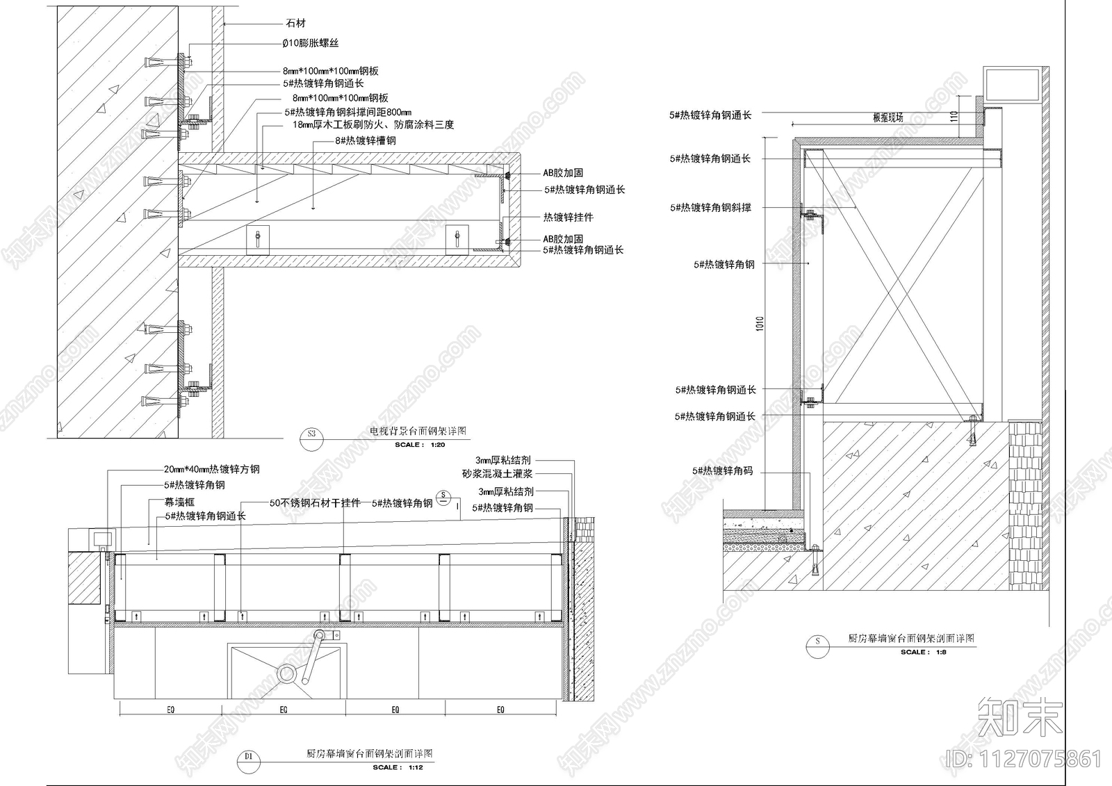
厨房幕墙窗台面钢架剖面详图 施工图 节点 结构节点图
1/
4
Previous
Next
厨房幕墙窗台面钢架剖面详图CAD下载
ID: 1127075861
复制
上传作者
小趴菜园
上传时间
2022-12-26
文件大小
3.45M
设计风格:
--
CAD版本:
CAD2004
包含文件:
CAD
授权
普通
立即下载
收藏
分享
举报
相关推荐
综合
结构节点图
幕墙结构节点
桁架
钢结构节点
混凝土节点
转换层
其他结构设计