CAD频道
CAD图库
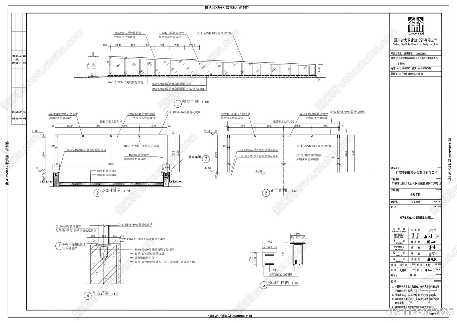
地下车库出入口廊架 施工图
1/
2
Previous
Next
地下车库出入口廊架CAD下载
ID: 1127073686
复制
上传作者
景观施工图互粉
上传时间
2022-12-26
文件大小
0.08M
设计风格:
--
CAD版本:
CAD2010
包含文件:
CAD
授权
独家
立即下载
收藏
分享
举报
相关推荐
综合
景观小品
廊架
亭子
景墙
综合景观小品
雨棚
围墙
挡土墙
入口
景观坐凳