CAD频道
CAD图库
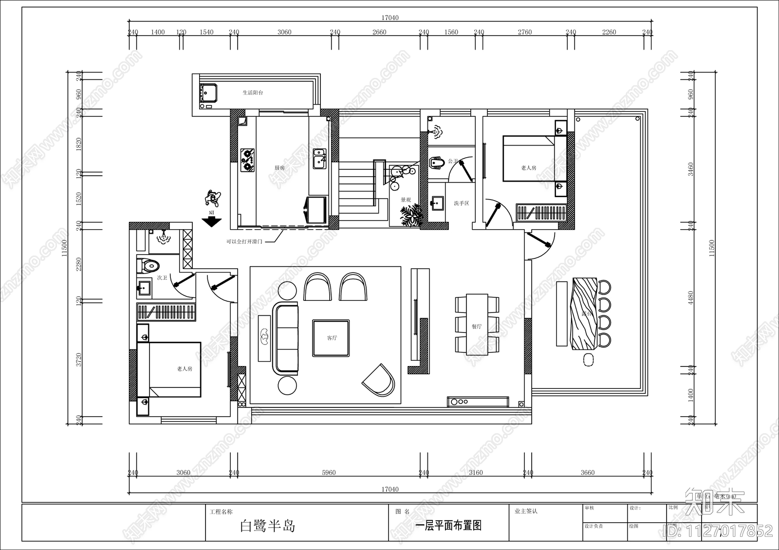
现代风格跃层 施工图 公寓
1/
3
Previous
Next
现代风格跃层CAD下载
ID: 1127017852
复制
上传作者
回到过去
上传时间
2022-12-23
文件大小
10.01M
设计风格:
现代简约
CAD版本:
CAD2013
包含文件:
CAD
授权
普通
立即下载
收藏
分享
举报
相关推荐
综合
公寓
复式公寓
loft公寓
单身公寓
酒店公寓