
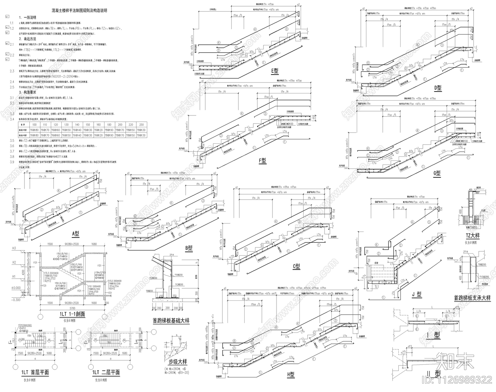
混凝土楼梯平法制图规则及构造说明CAD下载
ID: 1126989322
复制
上传作者
CAD实用图存
CAD实用图存上传时间2022-12-22
文件大小0.17M
设计风格:--
CAD版本:CAD2014
包含文件:CAD
授权独家
立即下载
收藏
分享
举报
相关推荐
综合
结构设计
混凝土结构
钢结构
幕墙结构
砌体结构
木结构
结构节点图
其他结构图纸

CAD实用图存上传时间2022-12-22
文件大小0.17M
设计风格:--
CAD版本:CAD2014
包含文件:CAD
授权独家