CAD频道
CAD图库
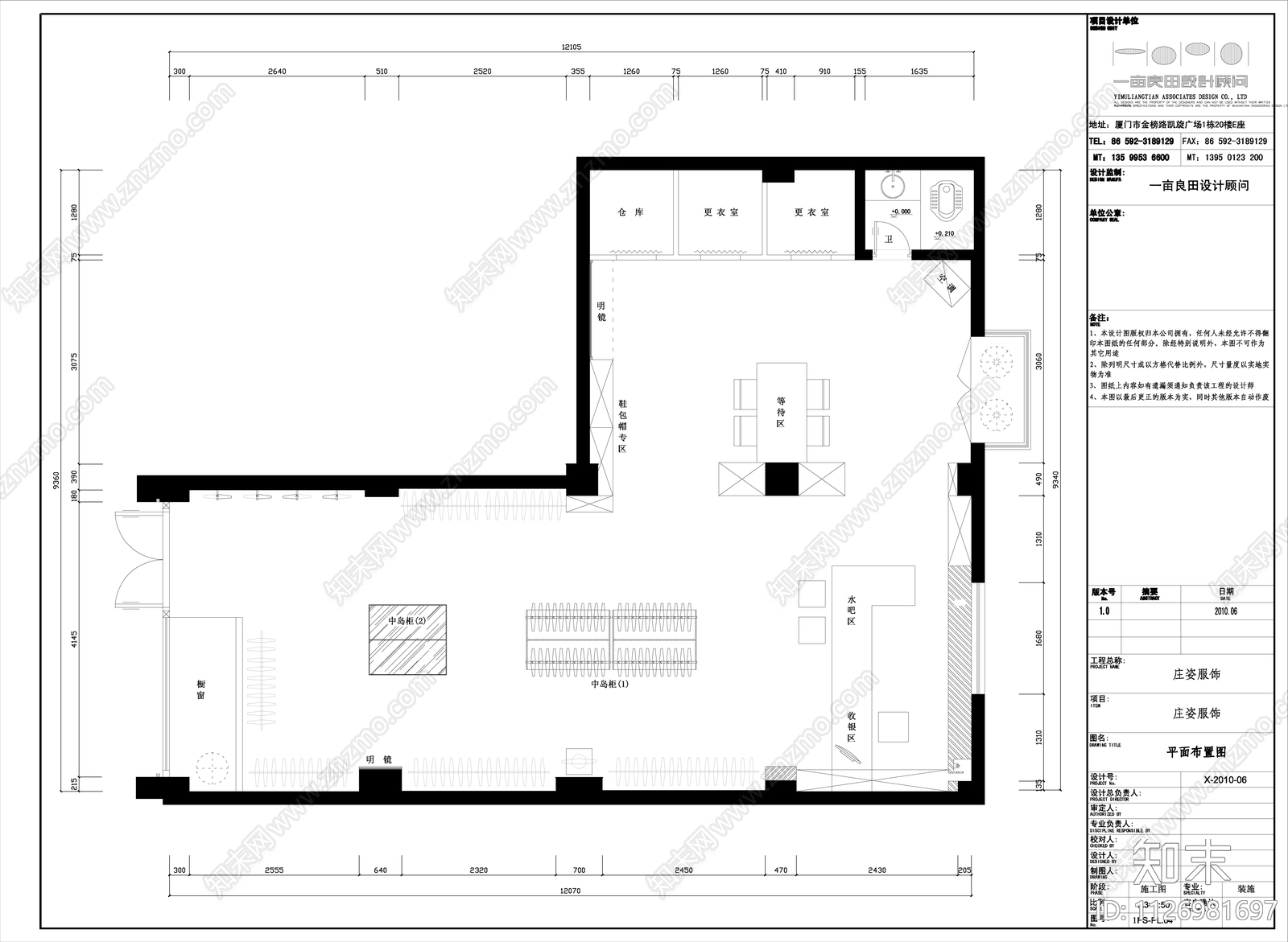
庄姿服饰混搭风格 施工图 效果图
1/
9
Previous
Next
庄姿服饰混搭风格CAD下载
ID: 1126981697
复制
上传作者
小趴菜园
上传时间
2022-12-22
文件大小
79.81M
设计风格:
--
CAD版本:
CAD2004
包含文件:
CAD
授权
独家
立即下载
收藏
分享
举报
相关推荐
综合
商业空间
服装店
售楼处
商场
其他商业空间
超市
书店
美甲店
珠宝店
4s店