CAD频道
CAD图库
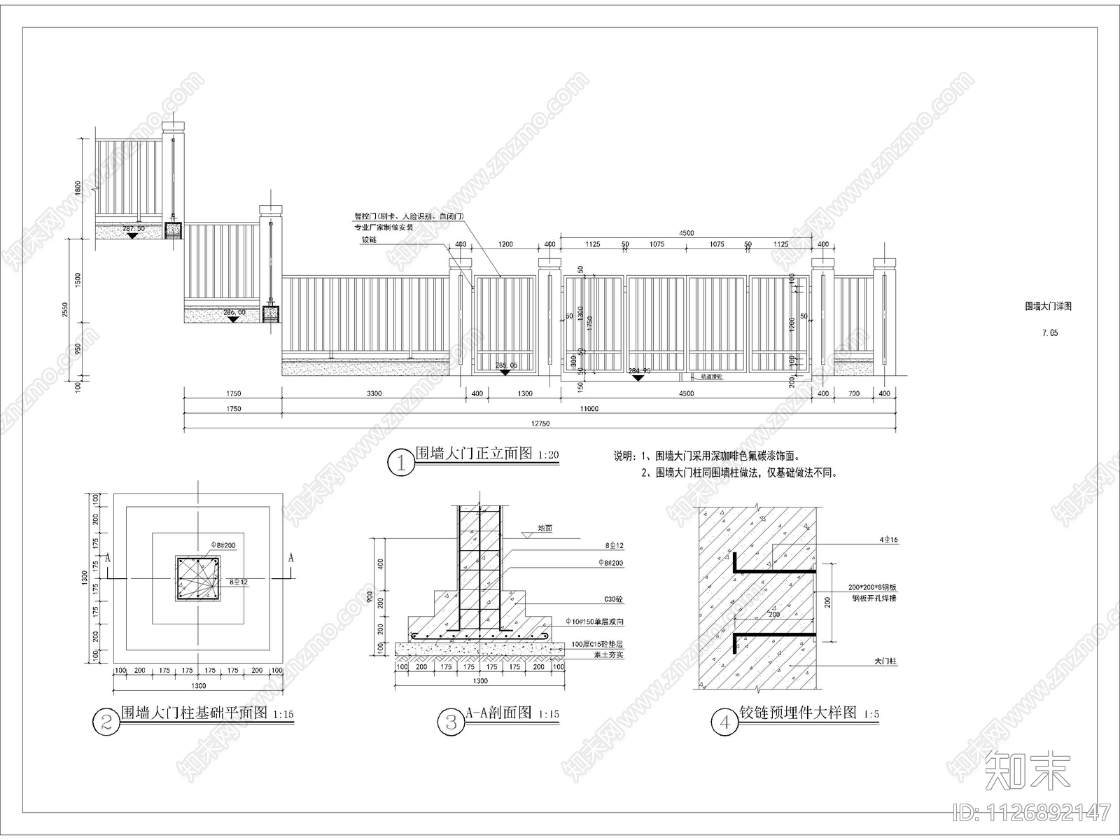
小区围墙施工图 围墙大施工图 墙面通用节点
1/
4
Previous
Next
小区围墙CADCAD下载
ID: 1126892147
复制
上传作者
萌姬少女
上传时间
2022-12-20
文件大小
0.69M
设计风格:
--
CAD版本:
CAD2005
包含文件:
CAD
授权
独家
立即下载
收藏
分享
举报
相关推荐
综合
墙面节点
背景墙节点
轻钢龙骨隔墙
壁龛节点
隔音墙节点