CAD频道
CAD图库
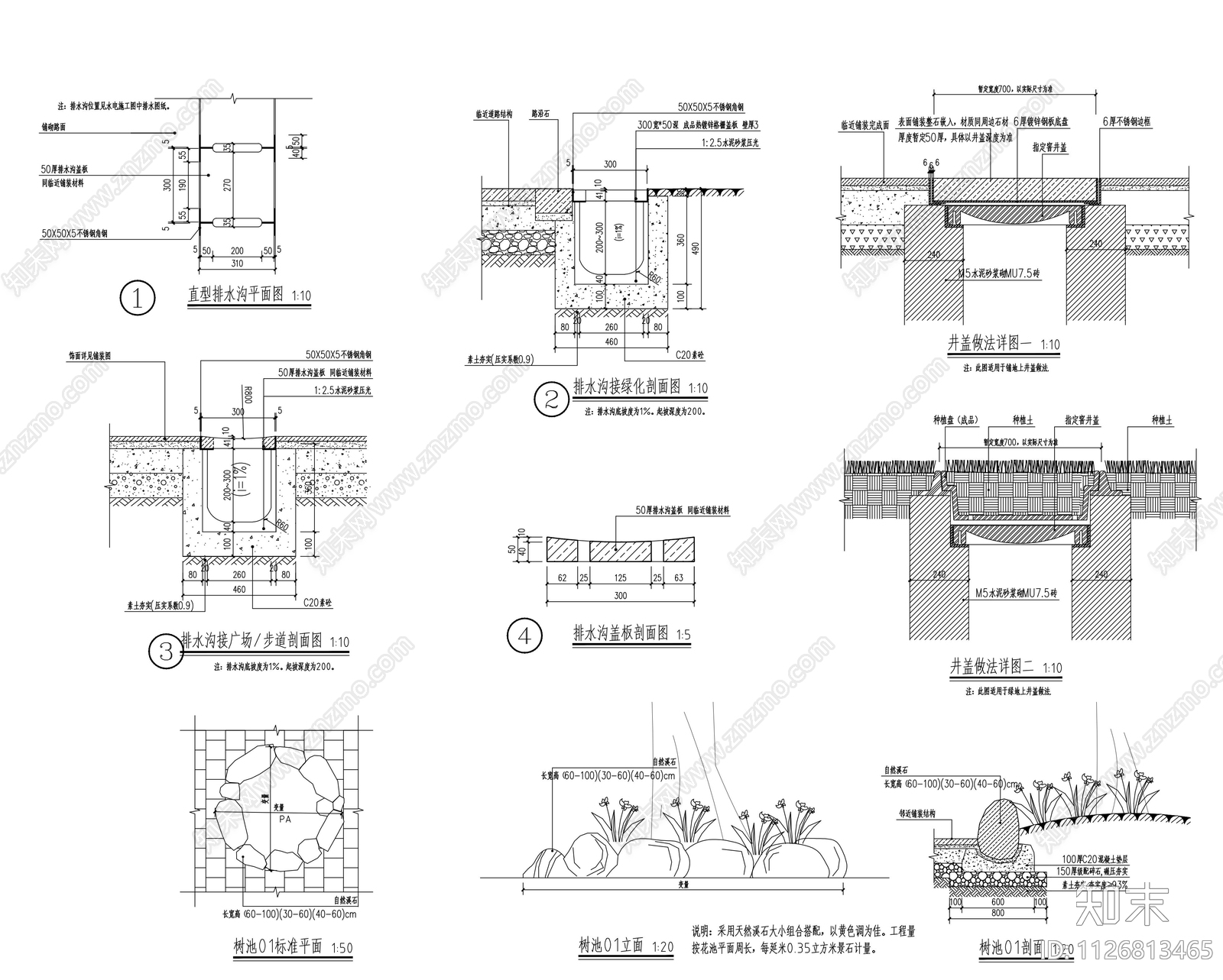
排水沟井盖通用做法详图 施工图 通用节点
1/
2
Previous
Next
排水沟井盖通用做法详图CAD下载
ID: 1126813465
复制
上传作者
457145
上传时间
2022-12-19
文件大小
1.7M
设计风格:
现代简约
CAD版本:
CAD2006
包含文件:
CAD
授权
普通
立即下载
收藏
分享
举报
相关推荐
综合
室内工艺节点
其他室内工艺节点