
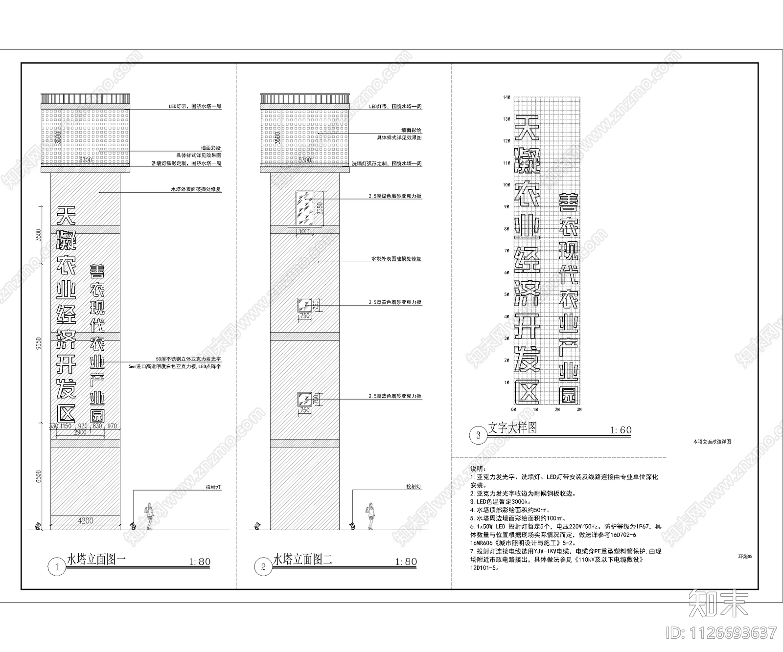
现代水塔改造详图CAD下载
ID: 1126693637
复制
上传作者
天问在我
天问在我上传时间2022-12-15
文件大小0.21M
设计风格:现代简约
CAD版本:CAD2007
包含文件:CAD
授权普通
立即下载
收藏
分享
举报
相关推荐
综合
景观图库
综合景观图库
景观雕塑图库
座凳图库
假山水景图库
景墙图库
围墙图库
树池图库
亭子图库
水井图库

天问在我上传时间2022-12-15
文件大小0.21M
设计风格:现代简约
CAD版本:CAD2007
包含文件:CAD
授权普通