1/2


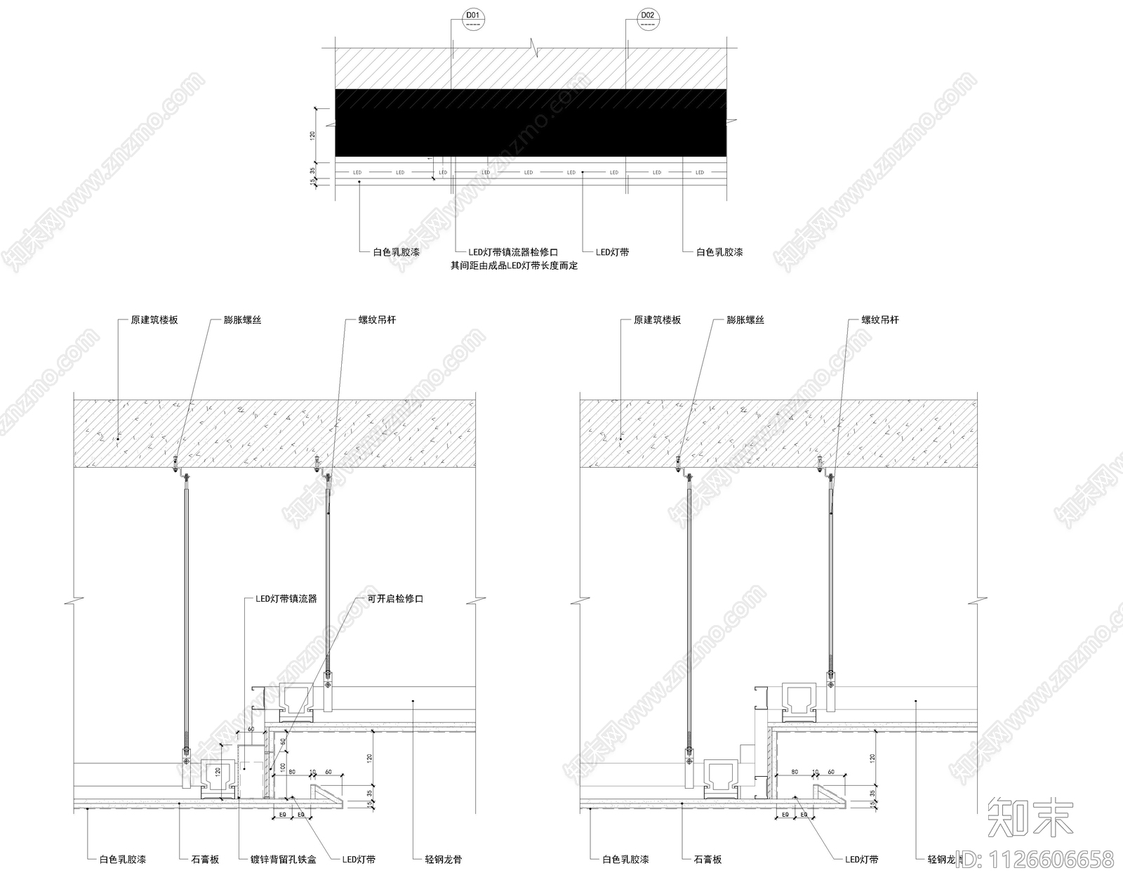
灯槽灯带天花吊顶CAD下载
ID: 1126606658
复制
上传作者
CAD实用图存
CAD实用图存上传时间2022-12-14
文件大小0.22M
设计风格:--
CAD版本:CAD2014
包含文件:CAD
授权独家
立即下载
收藏
分享
举报
相关推荐
综合
吊顶节点
方通吊顶
格栅吊顶
扣板吊顶
软膜天花
铝单板吊顶
GRG吊顶节点
石膏板吊顶
矿棉板吊顶


CAD实用图存上传时间2022-12-14
文件大小0.22M
设计风格:--
CAD版本:CAD2014
包含文件:CAD
授权独家