CAD频道
CAD图库
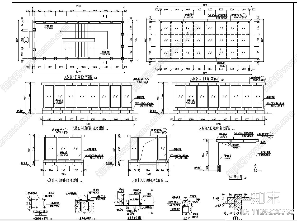
人防出入口雨篷 施工图 节点 结构节点图
1/
3
Previous
Next
人防出入口雨篷CAD下载
ID: 1126200366
复制
上传作者
QQQQ
上传时间
2022-12-07
文件大小
6.66M
设计风格:
其他
CAD版本:
CAD2004
包含文件:
CAD
授权
独家
立即下载
收藏
分享
举报
相关推荐
综合
结构节点图
钢结构节点
桁架
混凝土节点
幕墙结构节点
转换层
其他结构设计