CAD频道
CAD图库
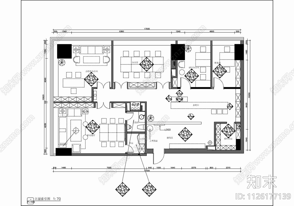
200㎡办公室CAD 施工图
1/
10
Previous
Next
200㎡办公室CAD下载
ID: 1126177139
复制
上传作者
@白鹿原
上传时间
2022-12-06
文件大小
3.81M
设计风格:
--
CAD版本:
CAD2004
包含文件:
CAD
授权
普通
立即下载
收藏
分享
举报
相关推荐
综合
办公空间
开放办公室
会议室
休息室
整体办公空间
独立办公室
直播间
茶水间
接待室
工作室