
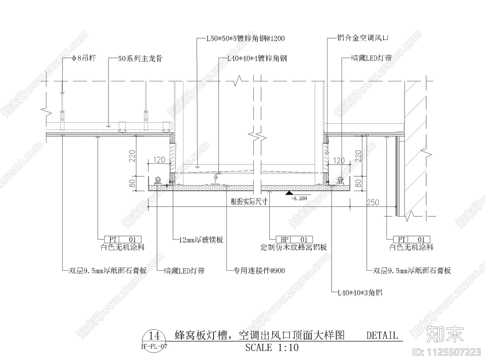
蜂窝板灯槽空调出风口顶面大样图CAD下载
ID: 1125507223
复制
上传作者
简僤ωêí乐
简僤ωêí乐上传时间2022-11-24
文件大小0.24M
设计风格:现代简约
CAD版本:CAD2004
包含文件:CAD
授权普通
立即下载
收藏
分享
举报
相关推荐
综合
电气工程节点
暖通节点
给排水节点详图
电气节点
水处理节点
其他电气工程节点

简僤ωêí乐上传时间2022-11-24
文件大小0.24M
设计风格:现代简约
CAD版本:CAD2004
包含文件:CAD
授权普通