1/6


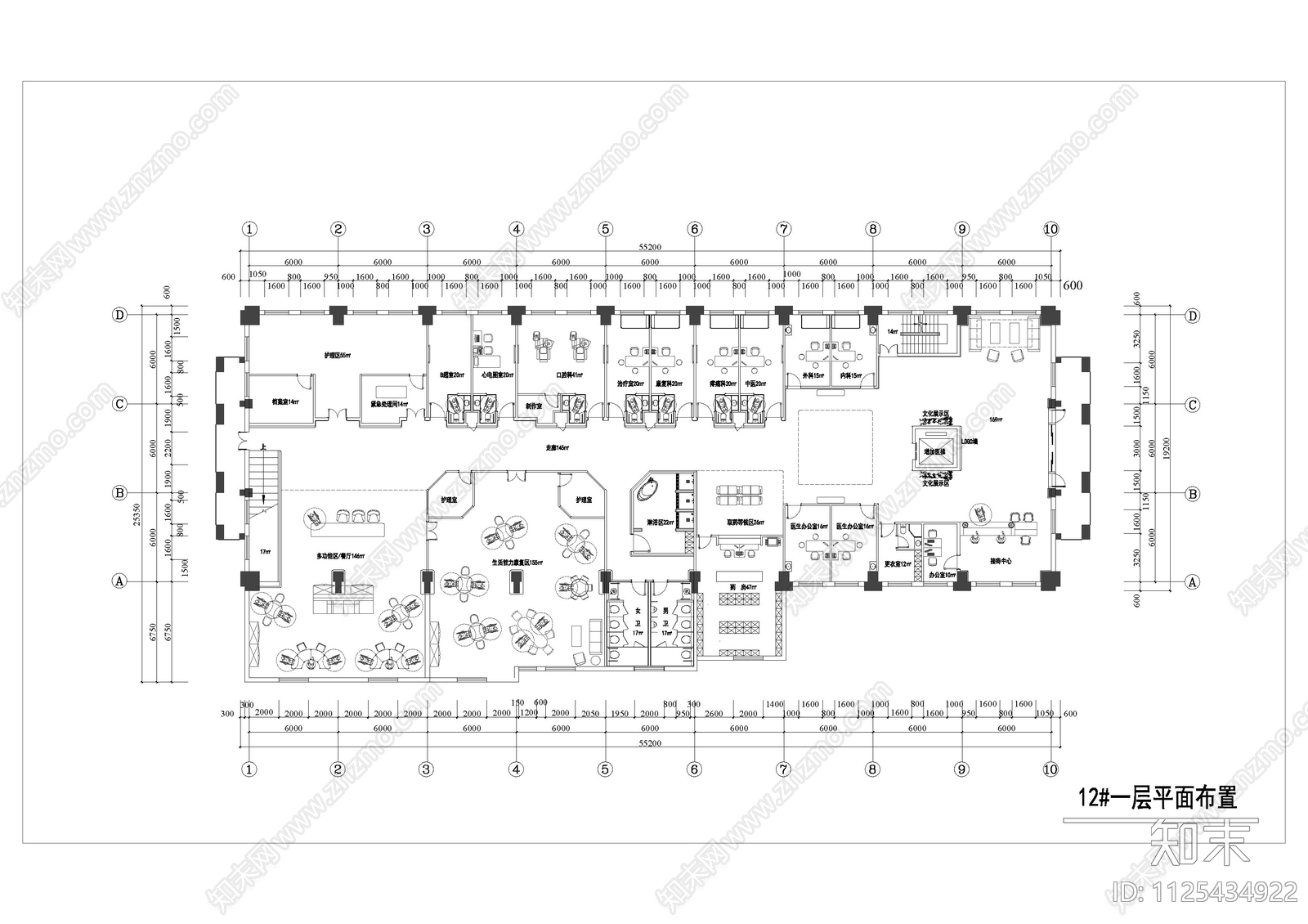
现代简约申城养老护理院CAD下载
ID: 1125434922
复制
上传作者
Madasban
Madasban上传时间2022-11-23
文件大小2.72M
设计风格:现代简约
CAD版本:CAD2004
包含文件:CAD
授权独家
立即下载
收藏
分享
举报
相关推荐
综合
公共空间
活动中心
其他公共空间
公共卫生间
宿舍
门头
服务中心
会展
母婴室
档案室


Madasban上传时间2022-11-23
文件大小2.72M
设计风格:现代简约
CAD版本:CAD2004
包含文件:CAD
授权独家