CAD频道
CAD图库
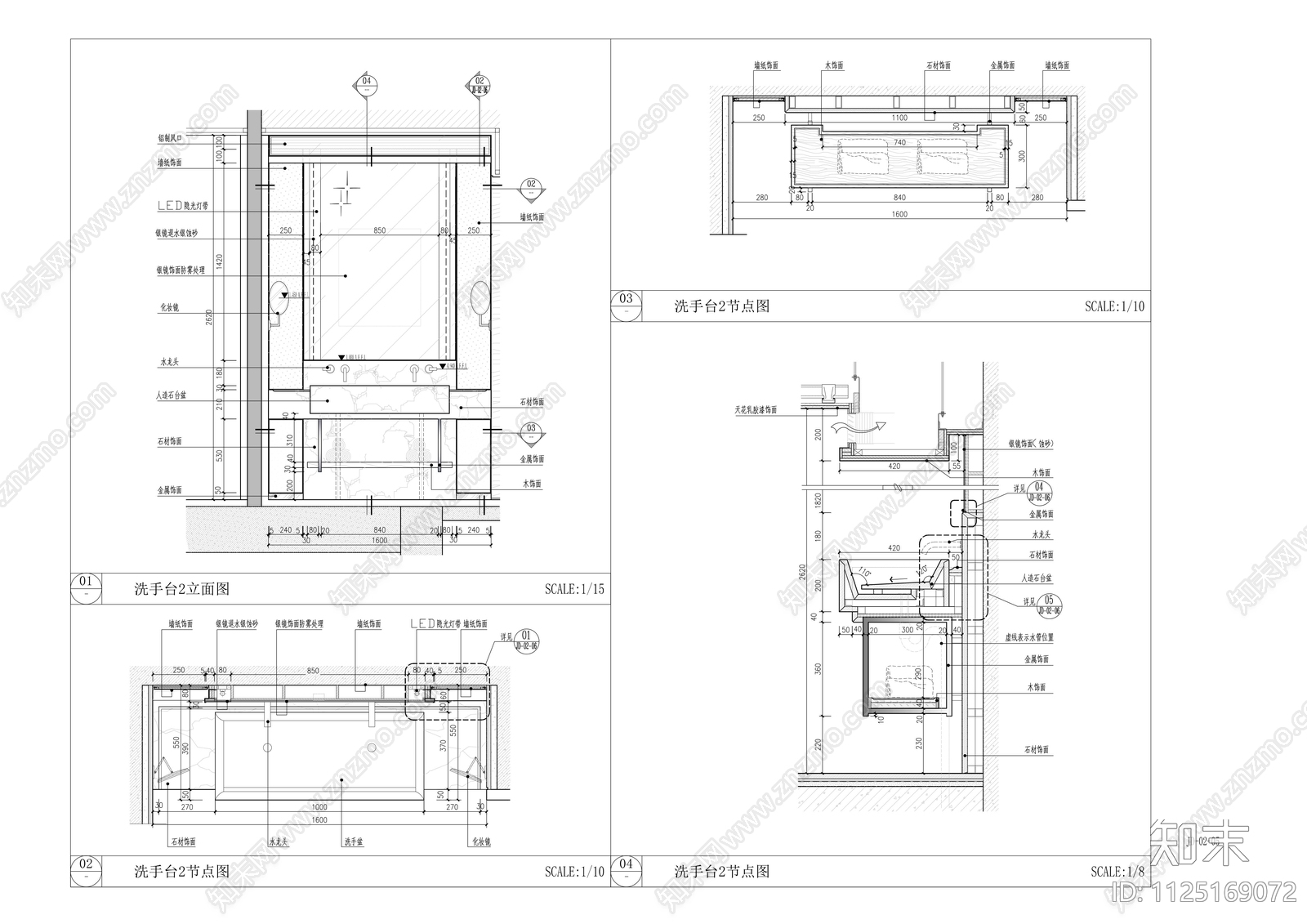
洗手台剖面 施工图 平面图块
1/
2
Previous
Next
洗手台剖面CAD下载
ID: 1125169072
复制
上传作者
Echo
上传时间
2022-11-19
文件大小
0.37M
设计风格:
--
CAD版本:
CAD2004
包含文件:
CAD
授权
独家
立即下载
收藏
分享
举报
相关推荐
综合
家具图库
沙发
桌椅
床
吧台
柜子
榻榻米
椅子
桌子
遮阳伞