CAD频道
CAD图库
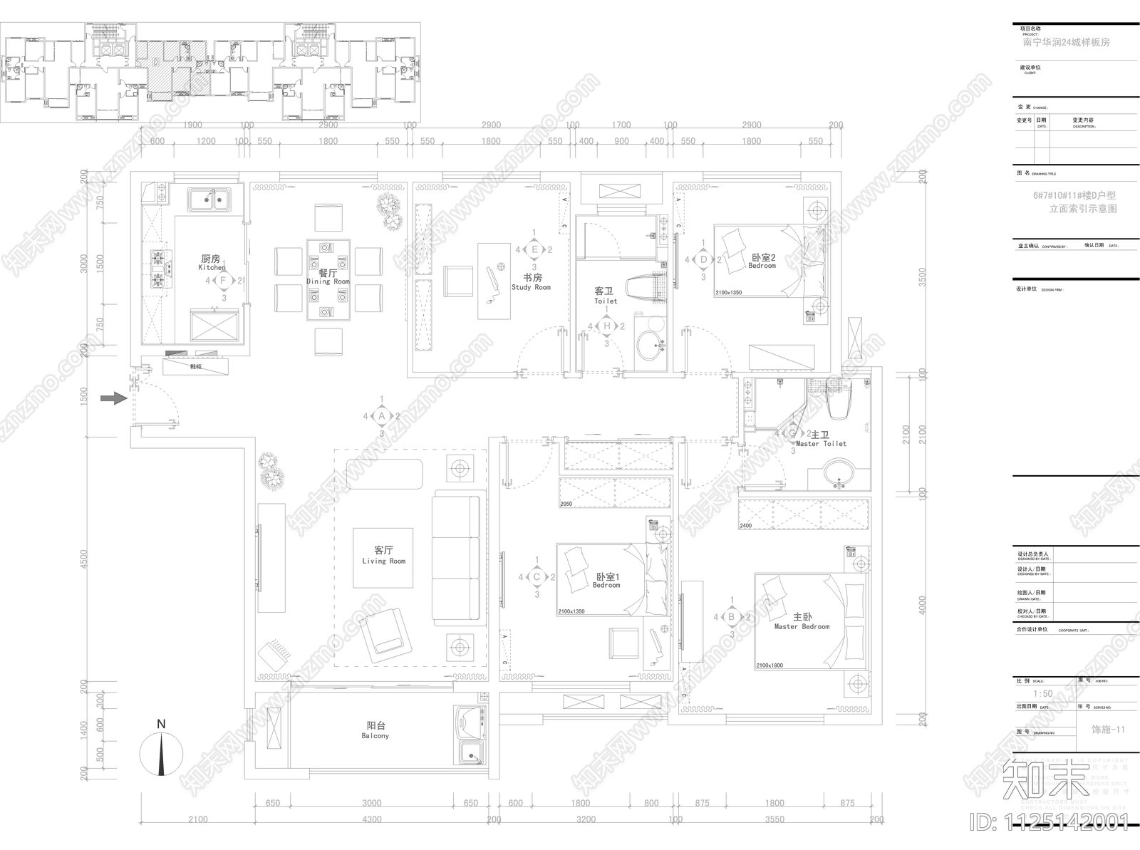
南宁华润24城 施工图 平层
1/
10
Previous
Next
南宁华润24城CAD下载
ID: 1125142001
复制
上传作者
哄哄
上传时间
2022-11-18
文件大小
99.13M
设计风格:
现代简约
CAD版本:
CAD2008
包含文件:
CAD
授权
普通
立即下载
收藏
分享
举报
相关推荐
综合
平层
大平层
小户型平层
超大型平层