CAD频道
CAD图库
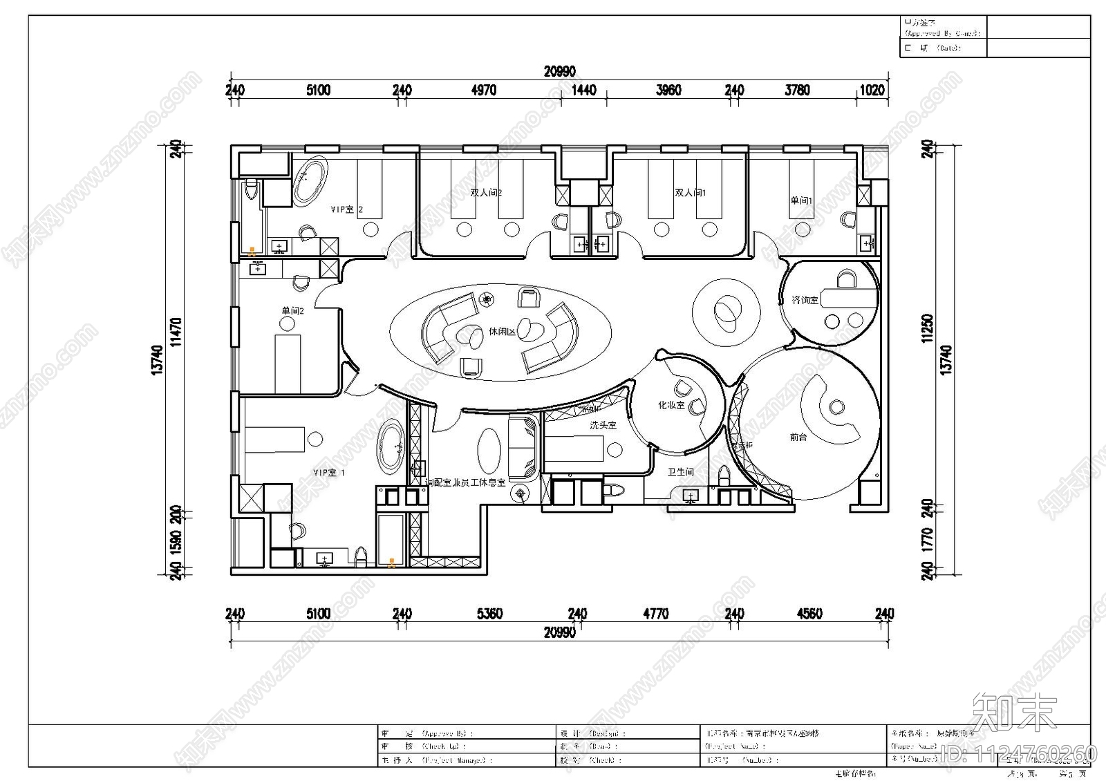
现代美容院平面方案设计
1/
3
Previous
Next
现代美容院平面方案设计CAD下载
ID: 1124760260
复制
上传作者
要加油吖
上传时间
2022-11-13
文件大小
1.06M
设计风格:
现代简约
CAD版本:
CAD2004
包含文件:
CAD
授权
独家
立即下载
收藏
分享
举报
相关推荐
综合
平面图
工装平面图
景观平面图
规划平面图
其他平面图
小区平面图