CAD频道
CAD图库
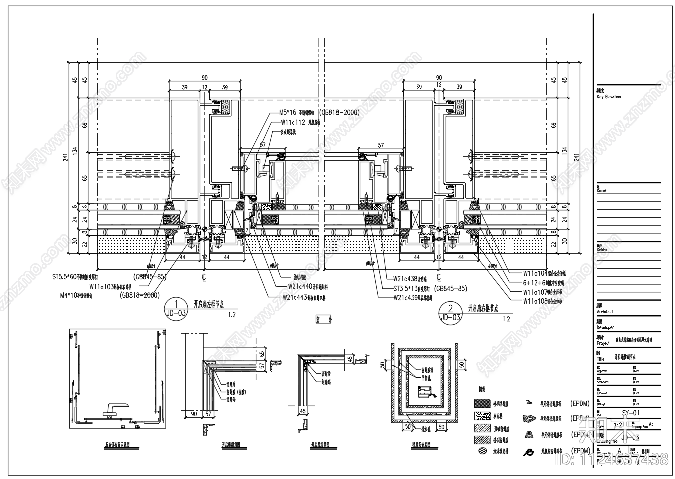
穿条式隔热铝合金幕墙节点 施工图 节点 结构节点图
1/
10
Previous
Next
穿条式隔热铝合金幕墙节点CAD下载
ID: 1124637438
复制
上传作者
小小鱼鱼
上传时间
2022-11-11
文件大小
1.12M
设计风格:
--
CAD版本:
CAD2000
包含文件:
CAD
授权
独家
立即下载
收藏
分享
举报
相关推荐
综合
结构节点图
幕墙结构节点
桁架
钢结构节点
混凝土节点
转换层
其他结构设计