CAD频道
CAD图库
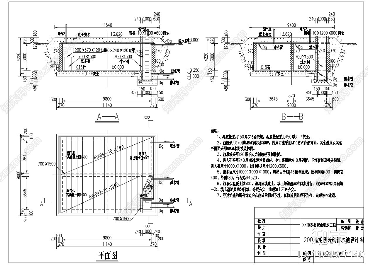
200吨矩形砖砌蓄水池设计图纸 施工图
1/
2
Previous
Next
200吨矩形砖砌蓄水池设计图纸CAD下载
ID: 1124527140
复制
上传作者
小小鱼鱼
上传时间
2022-11-09
文件大小
0.35M
设计风格:
--
CAD版本:
CAD2000
包含文件:
CAD
授权
独家
立即下载
收藏
分享
举报
相关推荐
综合
电气工程节点
水处理节点
给排水节点详图
暖通节点
电气节点
其他电气工程节点