CAD频道
CAD图库
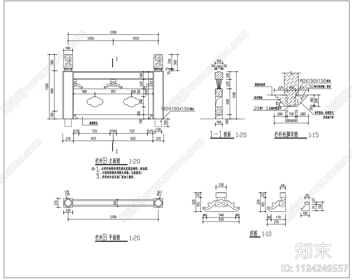
花岗岩石材栏杆 中式石护栏 施工图
1/
3
Previous
Next
花岗岩石材栏杆CAD下载
ID: 1124249557
复制
上传作者
小小鱼鱼
上传时间
2022-11-05
文件大小
0.37M
设计风格:
--
CAD版本:
CAD2000
包含文件:
CAD
授权
独家
立即下载
收藏
分享
举报
相关推荐
综合
景观小品
栏杆
亭子
廊架
景墙
综合景观小品
雨棚
围墙
挡土墙
入口