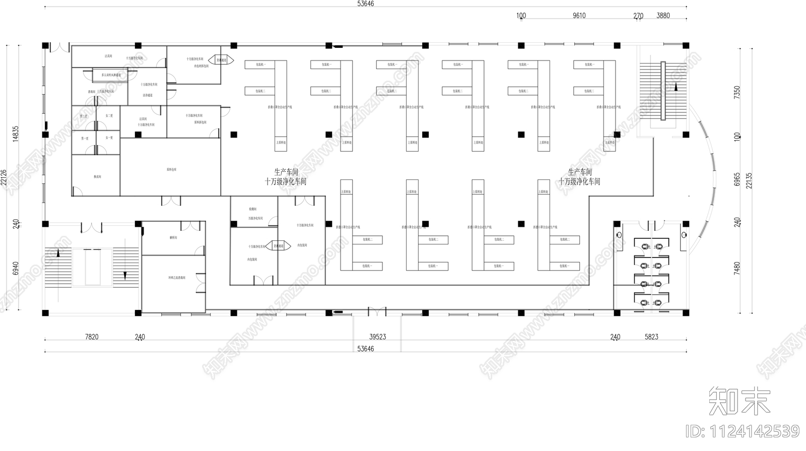
净化车间口罩厂CAD平面图施工图下载【ID:1124142539】

净化车间口罩厂CAD平面图下载

ID: 1124142539
复制
上传作者
精品创图精品创图

上传时间2022-11-03

文件大小0.08M

设计风格:现代简约

CAD版本:CAD2008

包含文件:CAD

授权独家

立即下载
收藏
分享
举报
相关推荐
综合
公共空间
车间
其他公共空间
公共卫生间
宿舍
门头
服务中心
活动中心
会展
母婴室