CAD频道
CAD图库
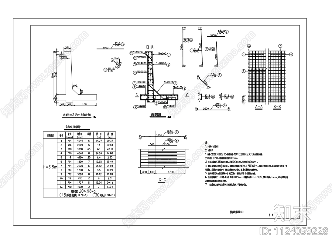
1米5至4米5米重力式挡土墙结构配筋
1/
6
Previous
Next
1米5至4米5米重力式挡土墙结构配筋CAD下载
ID: 1124059228
复制
上传作者
小小鱼鱼
上传时间
2022-11-02
文件大小
0.16M
设计风格:
--
CAD版本:
CAD2000
包含文件:
CAD
授权
独家
立即下载
收藏
分享
举报
相关推荐
综合
景观小品
挡土墙
亭子
廊架
景墙
综合景观小品
雨棚
围墙
入口
景观坐凳