CAD频道
CAD图库
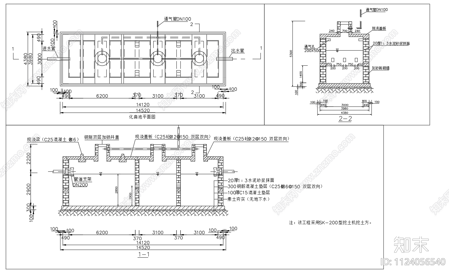
13号砖砌化粪池平面立面剖面 施工图
1/
3
Previous
Next
13号砖砌化粪池平面立面剖面CAD下载
ID: 1124056540
复制
上传作者
小小鱼鱼
上传时间
2022-11-02
文件大小
0.06M
设计风格:
--
CAD版本:
CAD2000
包含文件:
CAD
授权
独家
立即下载
收藏
分享
举报
相关推荐
综合
电气工程节点
水处理节点
给排水节点详图
暖通节点
电气节点
其他电气工程节点