1/3


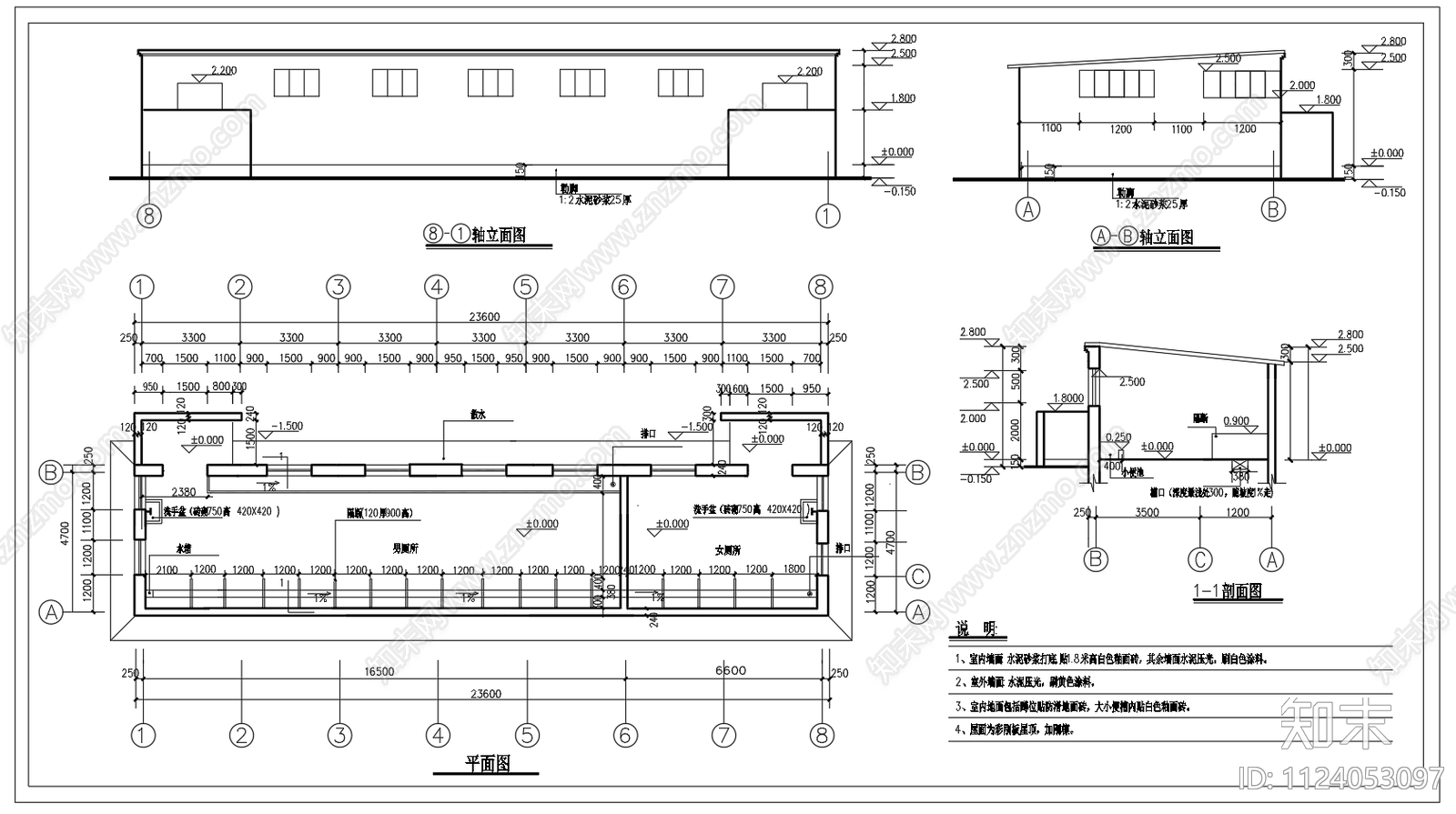
施工现场临时厕所CAD下载
ID: 1124053097
复制
上传作者
小小鱼鱼
小小鱼鱼上传时间2022-11-02
文件大小0.75M
设计风格:--
CAD版本:CAD2000
包含文件:CAD
授权独家
立即下载
收藏
分享
举报
相关推荐
综合
机电工程
建筑给排水
给排水图
水处理
暖通空调
电气图
电气工程节点
消防设施
机械设备
其他机电图纸


小小鱼鱼上传时间2022-11-02
文件大小0.75M
设计风格:--
CAD版本:CAD2000
包含文件:CAD
授权独家