1/4


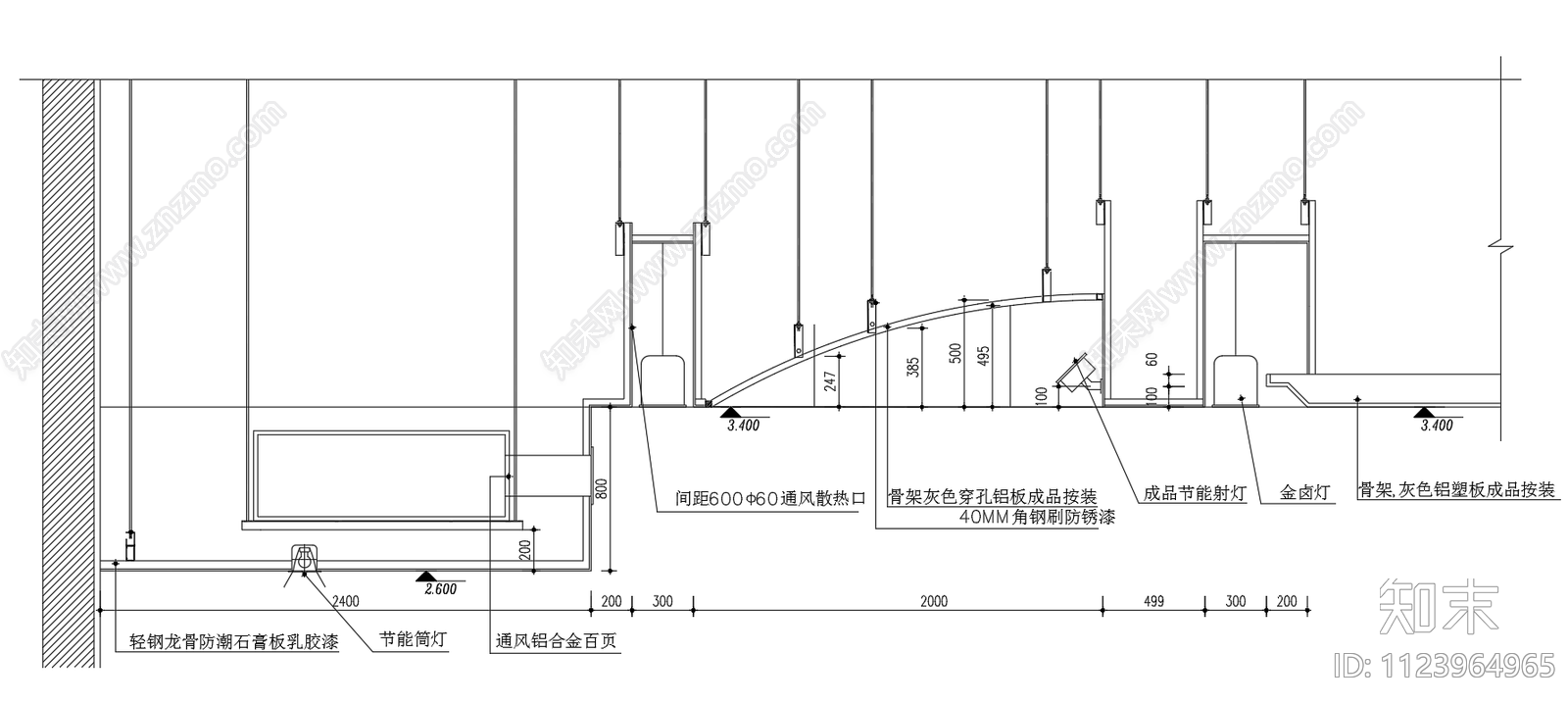
穿孔铝板吊顶节点图CAD下载
ID: 1123964965
复制
上传作者
小小鱼鱼
小小鱼鱼上传时间2022-11-01
文件大小0.12M
设计风格:--
CAD版本:CAD2000
包含文件:CAD
授权独家
立即下载
收藏
分享
举报
相关推荐
综合
吊顶节点
石膏板吊顶
方通吊顶
格栅吊顶
扣板吊顶
软膜天花
铝单板吊顶
GRG吊顶节点
矿棉板吊顶


小小鱼鱼上传时间2022-11-01
文件大小0.12M
设计风格:--
CAD版本:CAD2000
包含文件:CAD
授权独家