CAD频道
CAD图库
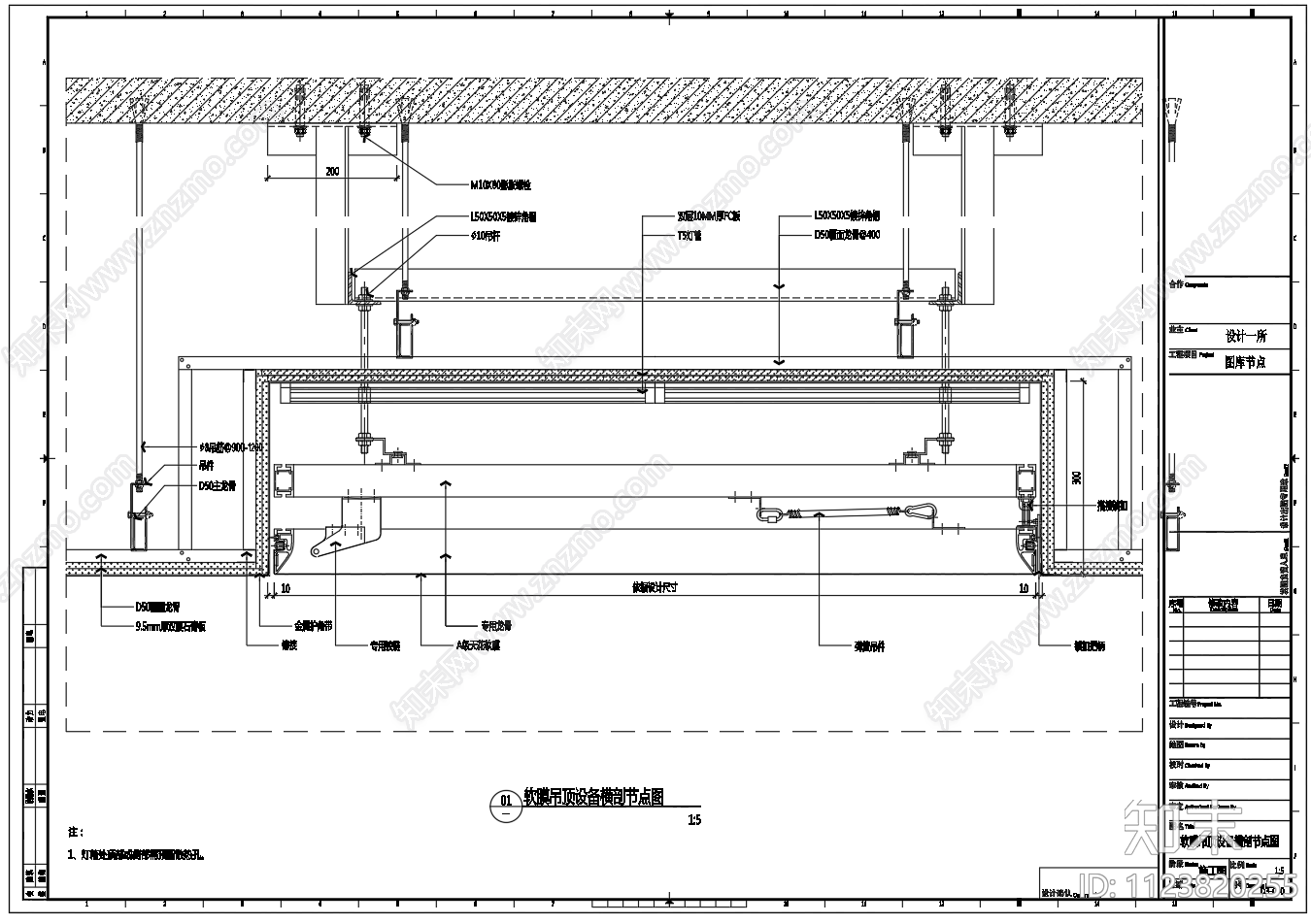
软膜天花 软膜构造图 施工图 吊顶节点
1/
4
Previous
Next
软膜天花CAD下载
ID: 1123820255
复制
上传作者
小小鱼鱼
上传时间
2022-10-30
文件大小
0.75M
设计风格:
--
CAD版本:
CAD2000
包含文件:
CAD
授权
独家
立即下载
收藏
分享
举报
相关推荐
综合
吊顶节点
扣板吊顶
方通吊顶
格栅吊顶
软膜天花
铝单板吊顶
GRG吊顶节点
石膏板吊顶
矿棉板吊顶