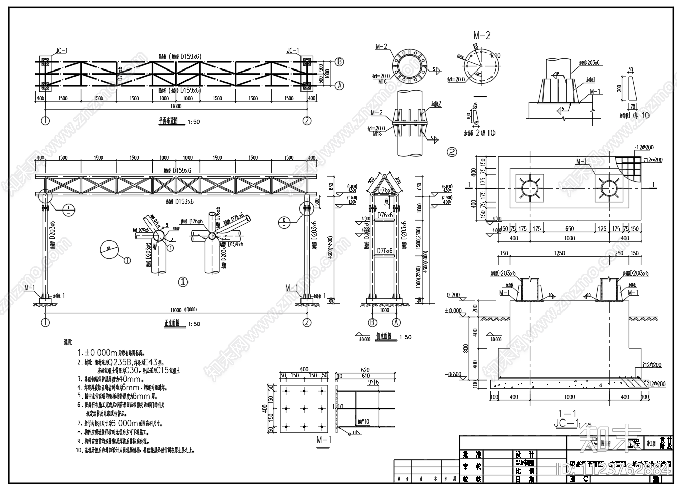
10米跨度限高杆限高架施工图下载【ID:1123762884】

10米跨度限高杆限高架CAD下载

ID: 1123762884
复制
上传作者
小小鱼鱼小小鱼鱼

上传时间2022-10-28

文件大小0.75M

设计风格:--

CAD版本:CAD2000

包含文件:CAD

授权独家

立即下载
收藏
分享
举报
相关推荐
综合
节点详图
楼梯节点
吊顶节点
墙面节点
地面节点
门节点
其他节点详图
建筑工程节点
景观小品
水景