1/3


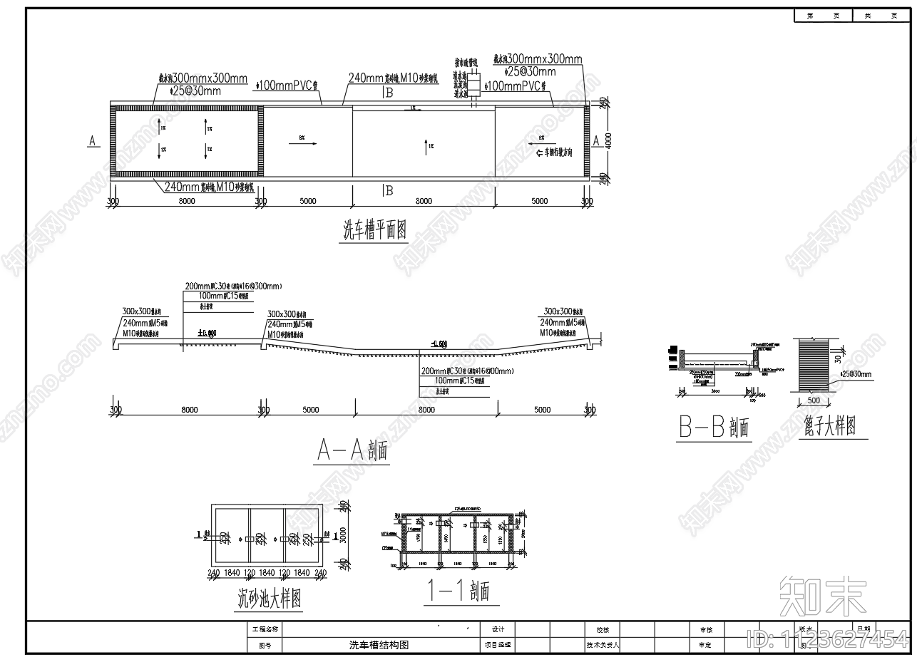
临时施工用洗车槽CAD下载
ID: 1123627454
复制
上传作者
小小鱼鱼
小小鱼鱼上传时间2022-10-26
文件大小0.1M
设计风格:--
CAD版本:CAD2000
包含文件:CAD
授权独家
立即下载
收藏
分享
举报
相关推荐
综合
CAD图库
其他图库
家具图库
灯具图库
植物图库
填充图案
交通工具图库
工装图库
制图规范
软装摆件图库


小小鱼鱼上传时间2022-10-26
文件大小0.1M
设计风格:--
CAD版本:CAD2000
包含文件:CAD
授权独家