CAD频道
CAD图库
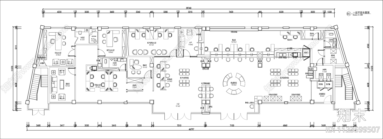
银行平面方案 施工图
1/
4
Previous
Next
银行平面方案CAD下载
ID: 1123599507
复制
上传作者
一二一啊
上传时间
2022-10-26
文件大小
2.42M
设计风格:
现代简约
CAD版本:
CAD2000
包含文件:
CAD
授权
独家
立即下载
收藏
分享
举报
相关推荐
综合
公共空间
市政单位
其他公共空间
公共卫生间
宿舍
门头
服务中心
活动中心
会展
母婴室