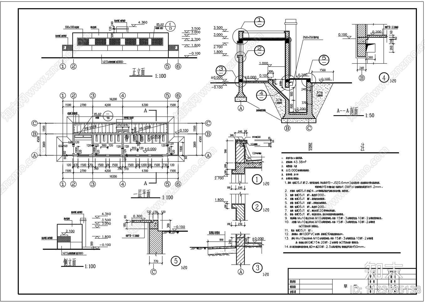
公共卫生间平面立面构造图施工图下载【ID:1123595138】

公共卫生间平面立面构造图CAD下载

ID: 1123595138
复制
上传作者
小小鱼鱼小小鱼鱼

上传时间2022-10-26

文件大小0.2M

设计风格:--

CAD版本:CAD2000

包含文件:CAD

授权独家

立即下载
收藏
分享
举报
相关推荐
综合
公共空间
公共卫生间
其他公共空间
宿舍
门头
服务中心
活动中心
会展
母婴室
档案室