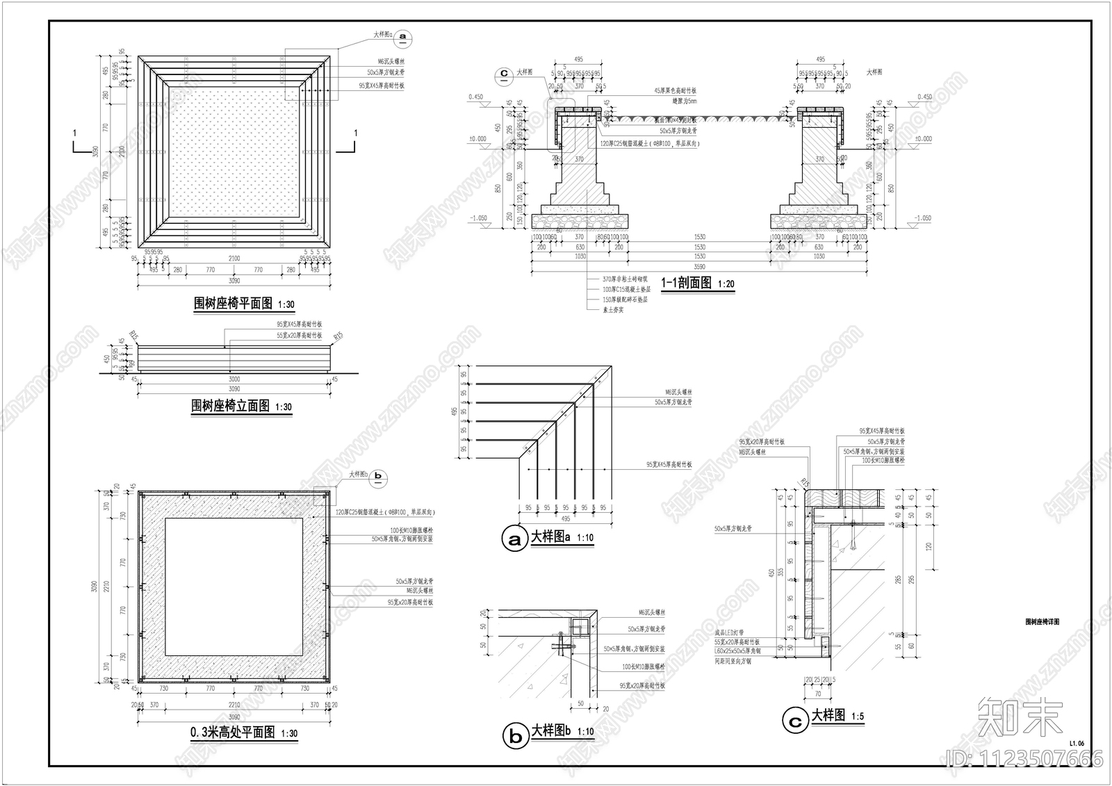
现代简约围树座椅施工图下载【ID:1123507666】

现代简约围树座椅CAD下载

ID: 1123507666
复制
上传作者
楊紫鳄鳄楊紫鳄鳄

上传时间2022-10-25

文件大小0.11M

设计风格:现代简约

CAD版本:CAD2000

包含文件:CAD

授权独家

立即下载
收藏
分享
举报
相关推荐
综合
景观小品
综合景观小品
亭子
廊架
景墙
雨棚
围墙
挡土墙
入口
景观坐凳