CAD频道
CAD图库
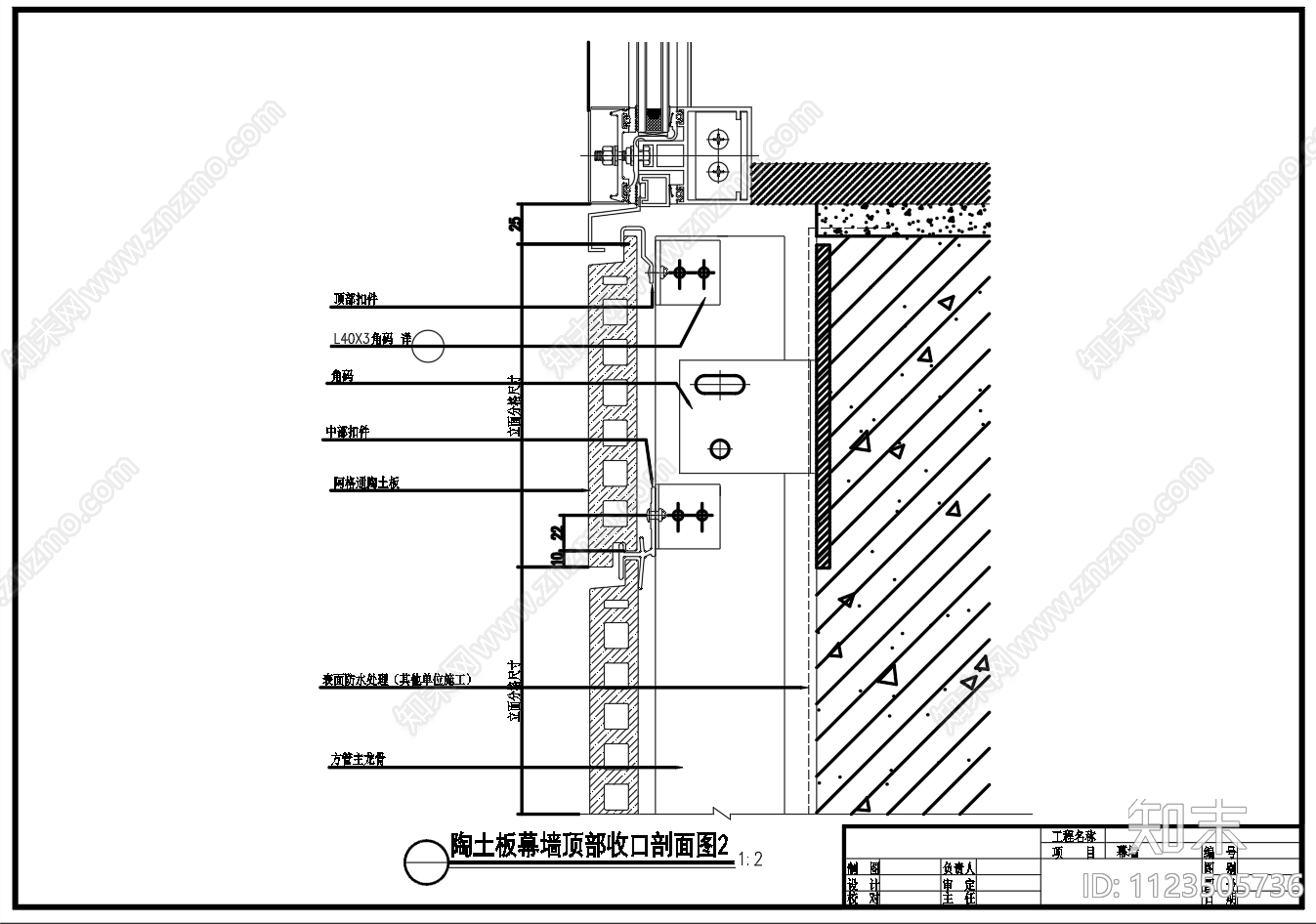
陶土板幕墙收口节点CAD图 施工图
1/
8
Previous
Next
陶土板幕墙收口节点CAD图下载
ID: 1123505736
复制
上传作者
小小鱼鱼
上传时间
2022-10-25
文件大小
0.26M
设计风格:
--
CAD版本:
CAD2000
包含文件:
CAD
授权
独家
立即下载
收藏
分享
举报
相关推荐
综合
结构设计
幕墙结构
混凝土结构
钢结构
砌体结构
木结构
结构节点图
其他结构图纸