CAD频道
CAD图库
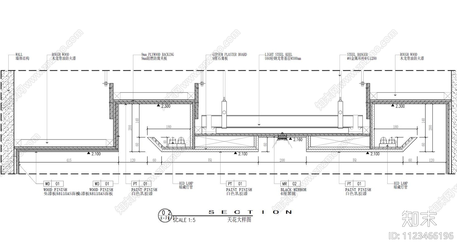
最全室内家装节点 施工图 通用节点
1/
3
Previous
Next
最全室内家装节点CAD下载
ID: 1123466196
复制
上传作者
我叫钟先生
上传时间
2022-10-24
文件大小
299.64M
设计风格:
现代简约
CAD版本:
CAD2014
包含文件:
CAD
授权
普通
立即下载
收藏
分享
举报
相关推荐
综合
室内工艺节点
其他室内工艺节点