CAD频道
CAD图库
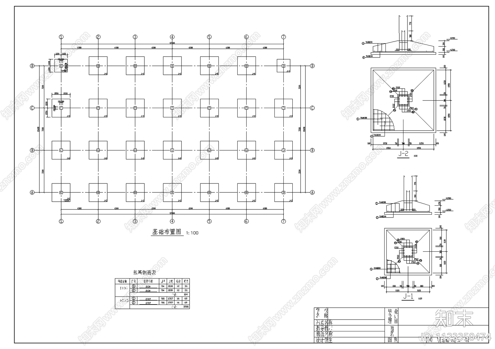
某三层框架结构厂房 施工图
1/
10
Previous
Next
某三层框架结构厂房CAD下载
ID: 1123350474
复制
上传作者
设计师蔡工
上传时间
2022-10-22
文件大小
2.42M
设计风格:
工业风
CAD版本:
CAD2010
包含文件:
CAD
授权
独家
立即下载
收藏
分享
举报
相关推荐
综合
结构设计
钢结构
混凝土结构
幕墙结构
砌体结构
木结构
结构节点图
其他结构图纸