CAD频道
CAD图库
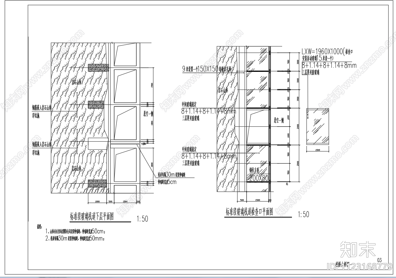
森林公园玻璃栈道 施工图 景观小品
1/
10
Previous
Next
森林公园玻璃栈道CAD下载
ID: 1123168779
复制
上传作者
小小鱼鱼
上传时间
2022-10-19
文件大小
2.48M
设计风格:
--
CAD版本:
CAD2000
包含文件:
CAD
授权
独家
立即下载
收藏
分享
举报
相关推荐
综合
景观小品
栈道
亭子
廊架
景墙
综合景观小品
雨棚
围墙
挡土墙
入口