1/10


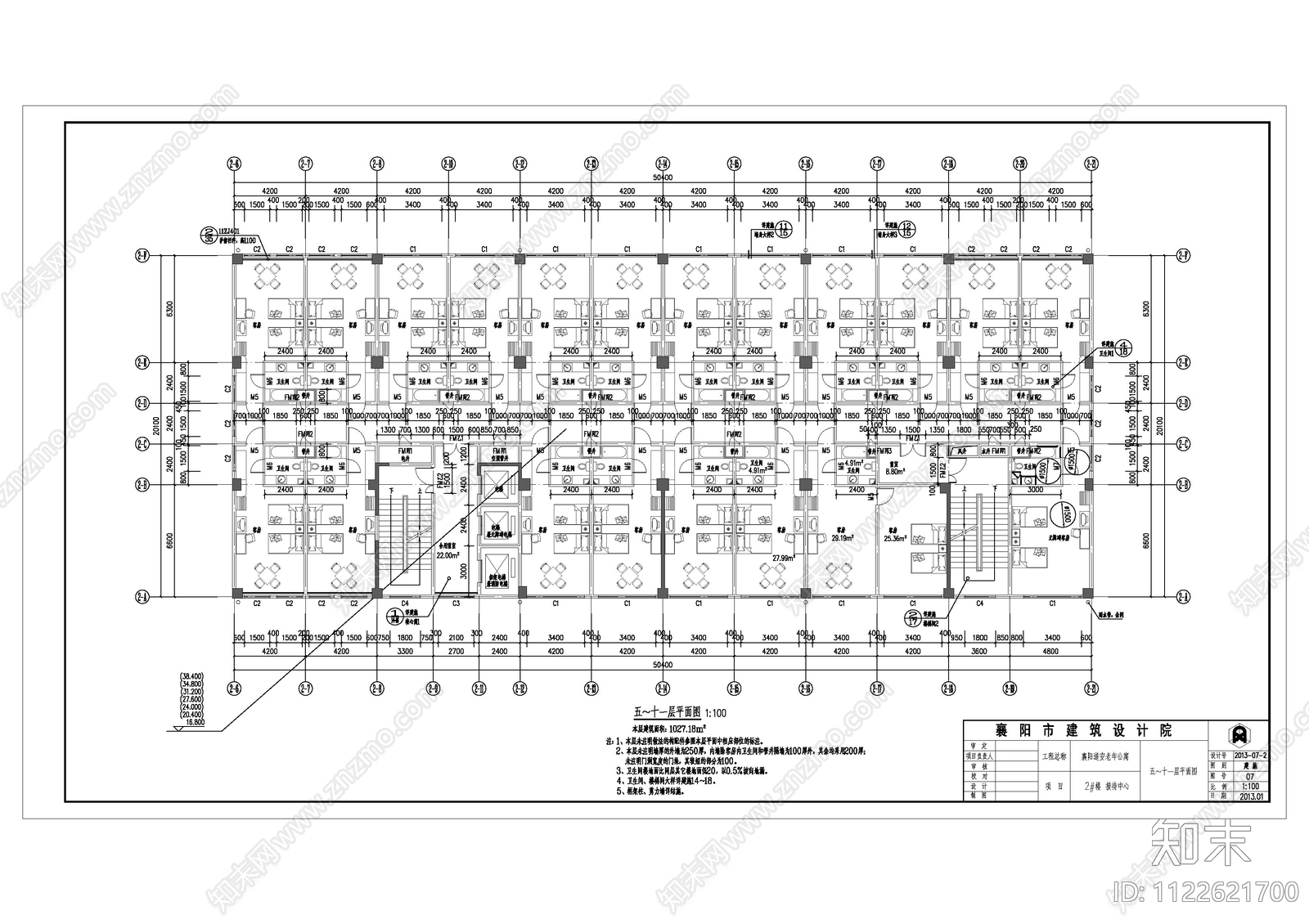
襄阳道安老年公寓CAD下载
ID: 1122621700
复制
上传作者
理想都市
理想都市上传时间2022-10-10
文件大小14.34M
设计风格:现代简约
CAD版本:CAD2004
包含文件:CAD
授权独家
立即下载
收藏
分享
举报
相关推荐
综合
公共空间
活动中心
其他公共空间
公共卫生间
宿舍
门头
服务中心
会展
母婴室
档案室


理想都市上传时间2022-10-10
文件大小14.34M
设计风格:现代简约
CAD版本:CAD2004
包含文件:CAD
授权独家