CAD频道
CAD图库
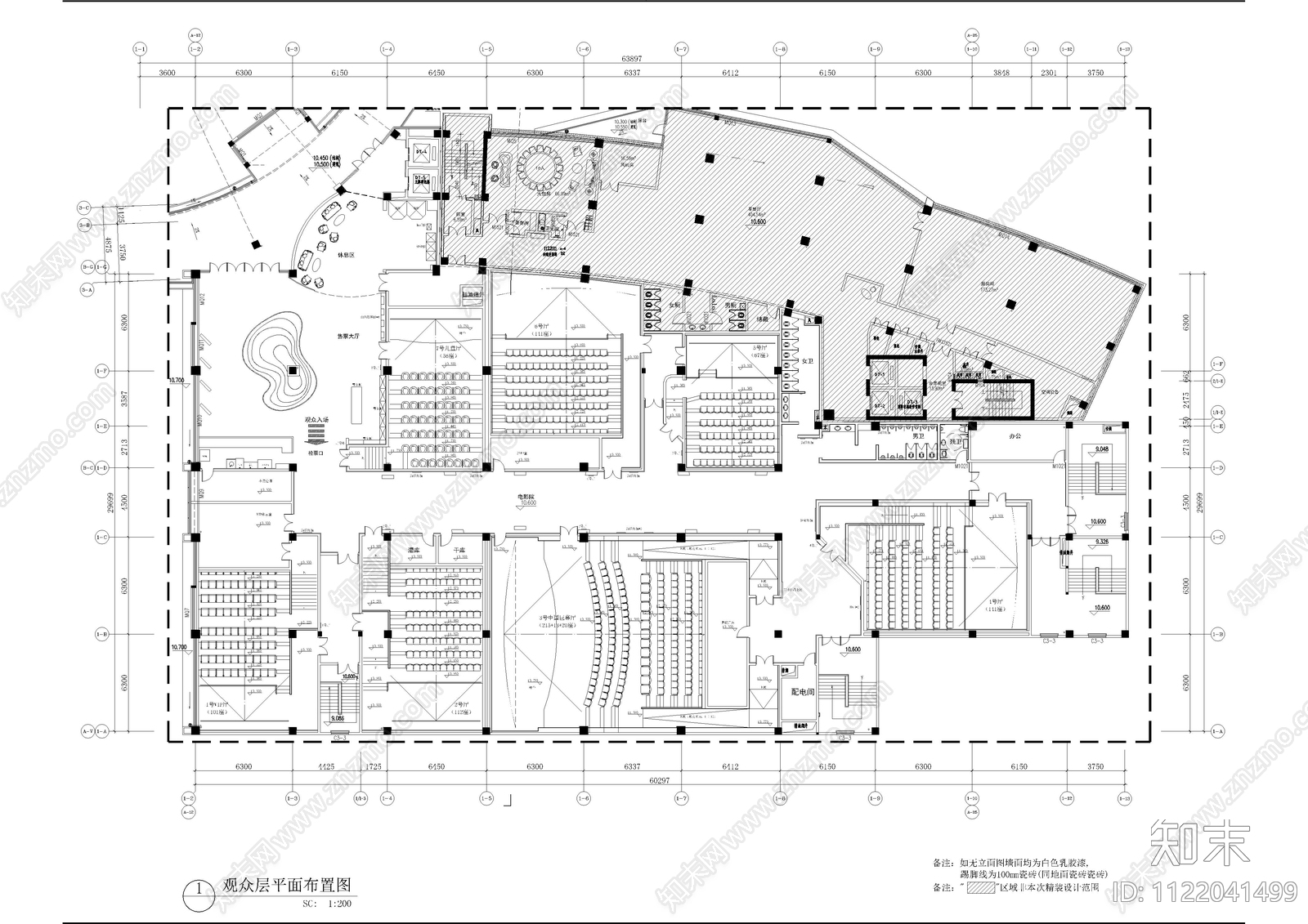
品牌漫城影院平面施工图
1/
4
Previous
Next
品牌漫城影院平面CADCAD下载
ID: 1122041499
复制
上传作者
小趴菜园
上传时间
2022-09-28
文件大小
10.94M
设计风格:
--
CAD版本:
CAD2004
包含文件:
CAD
授权
独家
立即下载
收藏
分享
举报
相关推荐
综合
休闲娱乐空间
电影院
会所
美容院
理发店
茶馆
健身房
KTV
酒吧
网吧