
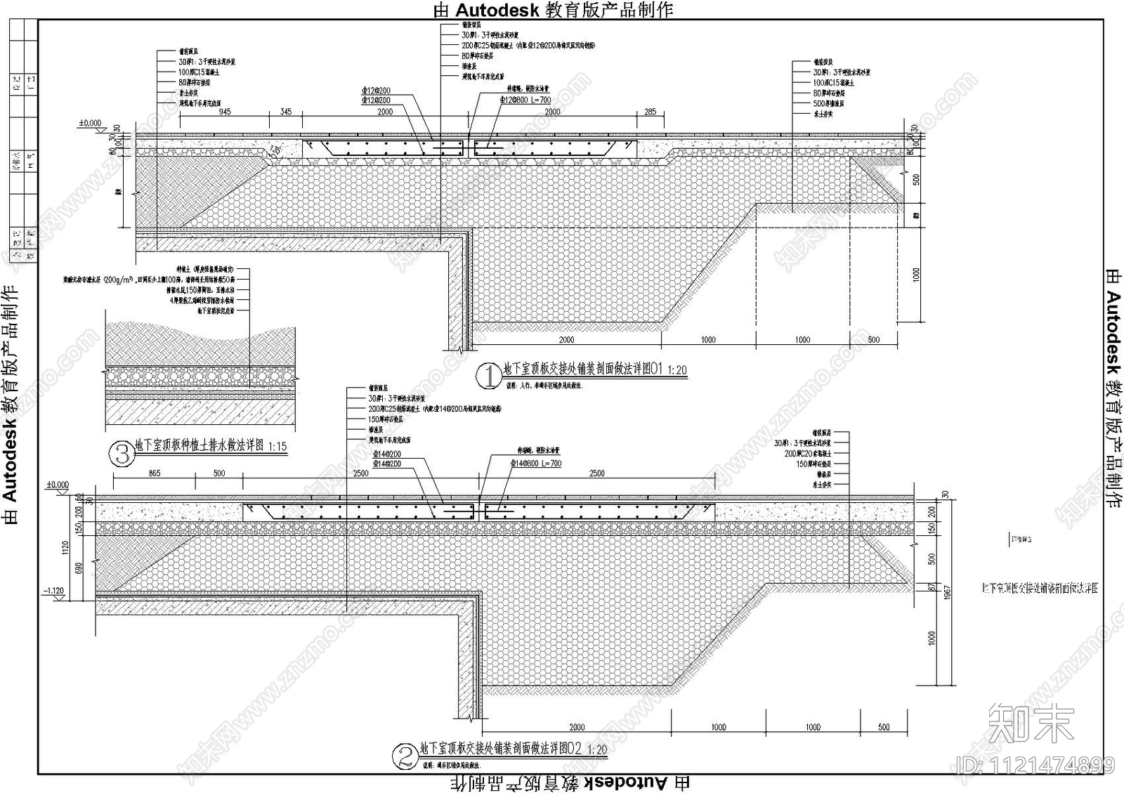
现代简约地下室顶板交接处铺装剖面做法详图CAD下载
ID: 1121474899
复制
上传作者
labububbbbb
labububbbbb上传时间2022-09-19
文件大小3.72M
设计风格:现代简约
CAD版本:CAD2004
包含文件:CAD
授权普通
立即下载
收藏
分享
举报
相关推荐
综合
景观小品
铺装
亭子
廊架
景墙
综合景观小品
雨棚
围墙
挡土墙
入口

labububbbbb上传时间2022-09-19
文件大小3.72M
设计风格:现代简约
CAD版本:CAD2004
包含文件:CAD
授权普通