CAD频道
CAD图库
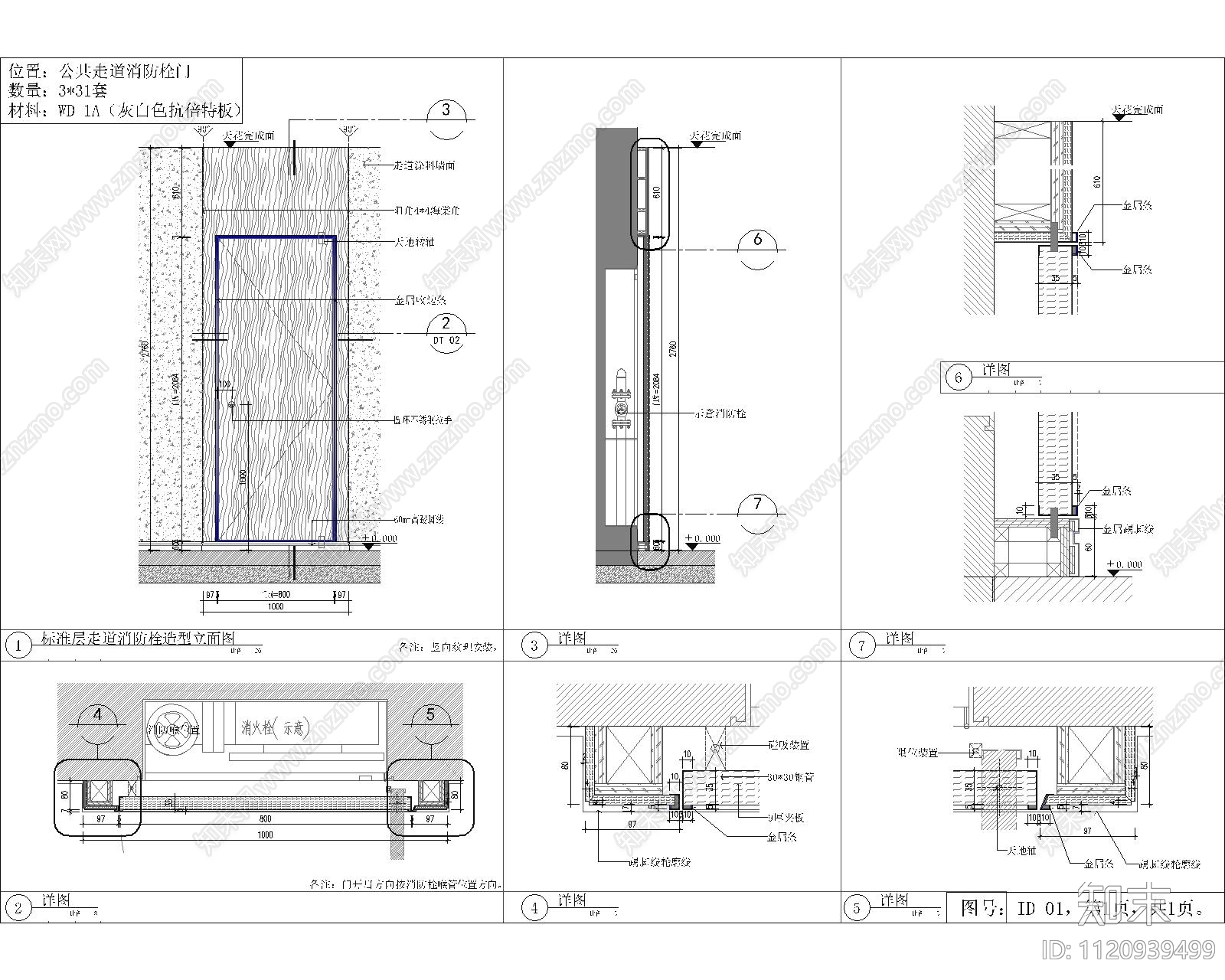
办公楼走道消防栓门施工详细深化图 通用节点 门节点
1/
3
Previous
Next
办公楼走道消防栓门施工详细深化图CAD下载
ID: 1120939499
复制
上传作者
Ken
上传时间
2022-09-09
文件大小
0.22M
设计风格:
--
CAD版本:
--
包含文件:
CAD
授权
独家
立即下载
收藏
分享
举报
相关推荐
综合
门节点
入户门
铁艺大门
月洞门
玻璃门节点
推拉门节点
隐形门节点
综合门节点