CAD频道
CAD图库
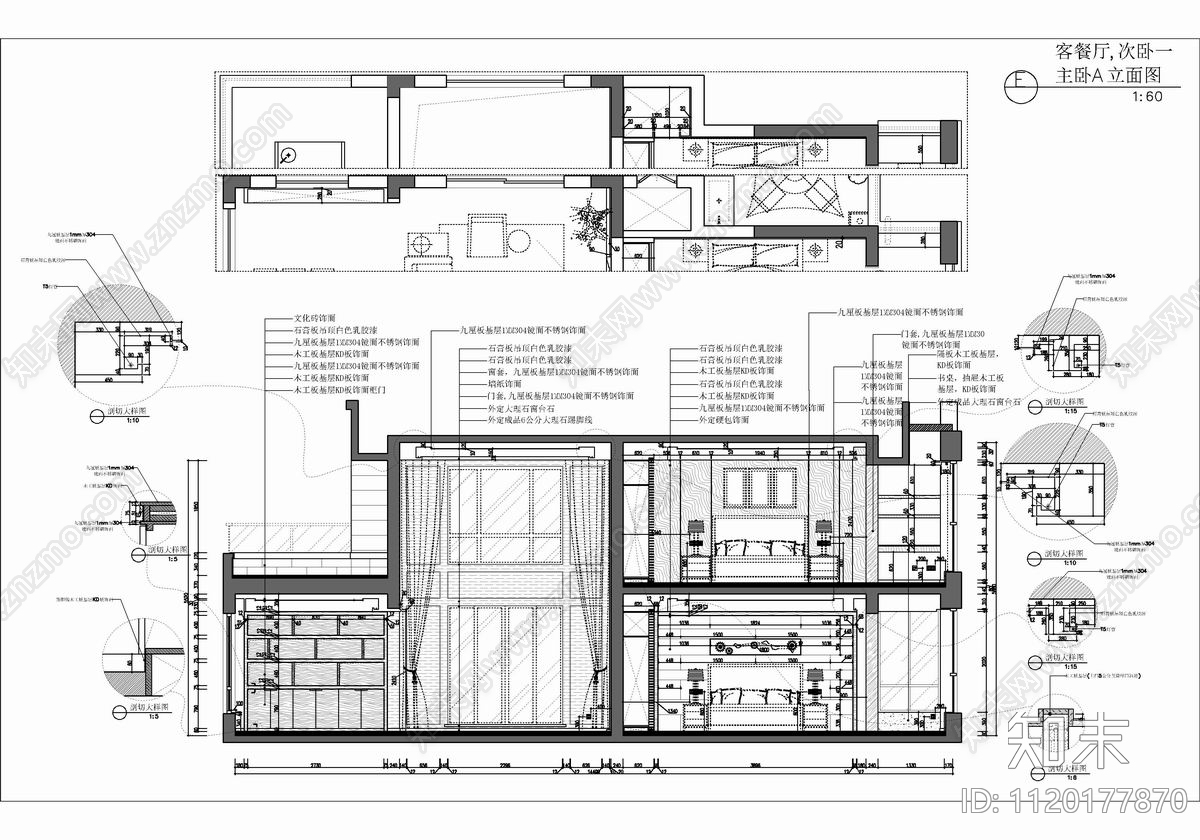
240㎡跃层家装空间CAD施工图 平层
1/
10
Previous
Next
240㎡跃层家装空间CAD下载
ID: 1120177870
复制
上传作者
@白鹿原
上传时间
2022-08-29
文件大小
6.71M
设计风格:
--
CAD版本:
CAD2004
包含文件:
CAD
授权
普通
立即下载
收藏
分享
举报
相关推荐
综合
平层
大平层
小户型平层
超大型平层