CAD频道
CAD图库
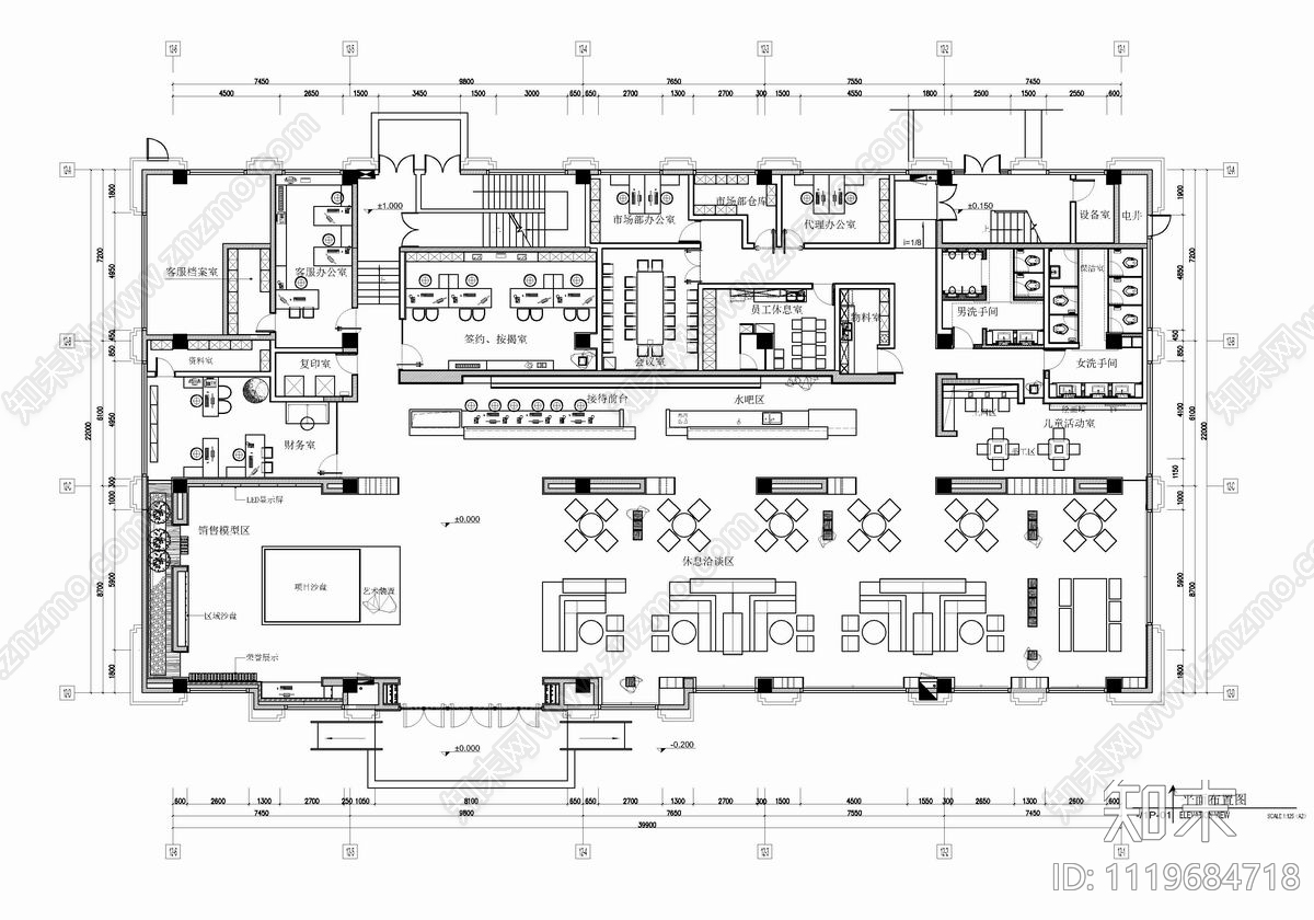
950㎡售楼处销售中心CAD施工图
1/
10
Previous
Next
950㎡售楼处销售中心CAD下载
ID: 1119684718
复制
上传作者
@白鹿原
上传时间
2022-08-20
文件大小
46.58M
设计风格:
--
CAD版本:
CAD2004
包含文件:
CAD
授权
普通
立即下载
收藏
分享
举报
相关推荐
综合
商业空间
售楼处
商场
其他商业空间
超市
服装店
书店
美甲店
珠宝店
4s店