1/4


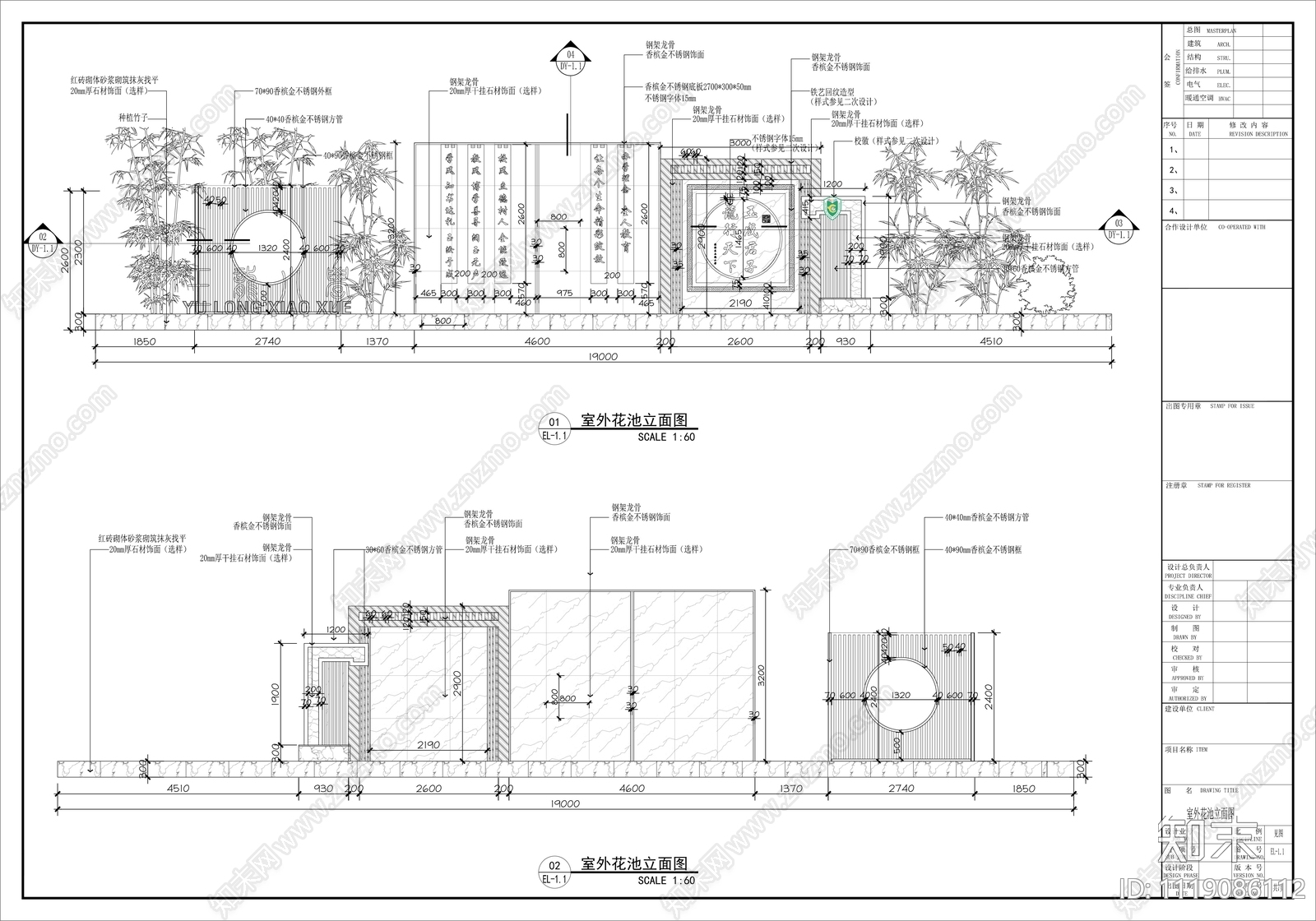
水池水景景观节点CADCAD下载
ID: 1119086112
复制
上传作者
观道设计事务所
观道设计事务所上传时间2022-08-12
文件大小4.77M
设计风格:现代简约
CAD版本:CAD2004
包含文件:CAD
授权普通
立即下载
收藏
分享
举报
相关推荐
综合
节点详图
水景
吊顶节点
墙面节点
地面节点
门节点
其他节点详图
建筑工程节点
景观小品
楼梯节点


观道设计事务所上传时间2022-08-12
文件大小4.77M
设计风格:现代简约
CAD版本:CAD2004
包含文件:CAD
授权普通