1/4


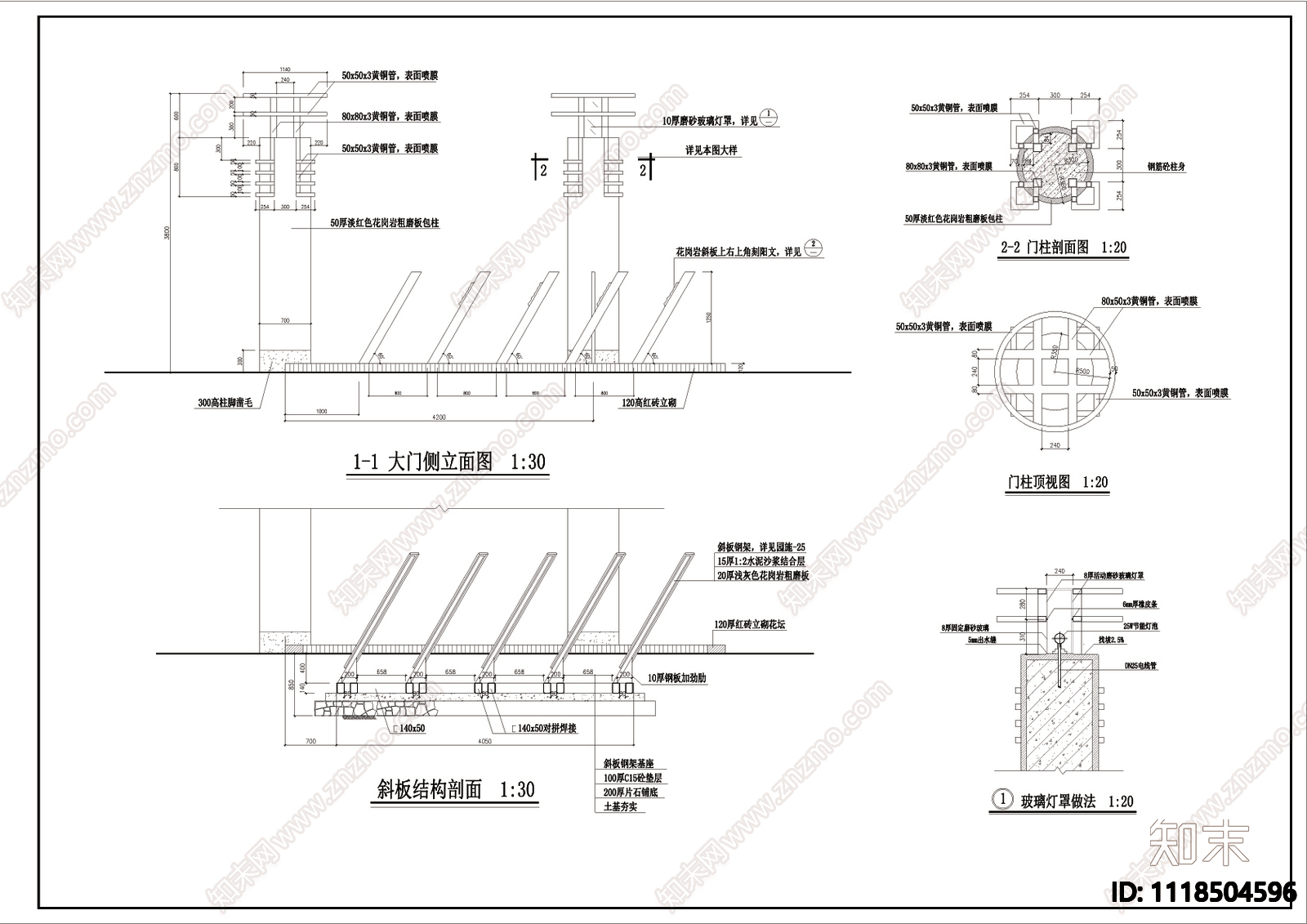
大门侧立面及门柱细部做CAD下载
ID: 1118504596
复制
上传作者
DJ-SJ
DJ-SJ上传时间2022-08-02
文件大小0.1M
设计风格:--
CAD版本:CAD2010
包含文件:CAD
授权独家
立即下载
收藏
分享
举报
相关推荐
综合
节点详图
包柱节点
吊顶节点
墙面节点
地面节点
门节点
其他节点详图
建筑工程节点
景观小品
楼梯节点


DJ-SJ上传时间2022-08-02
文件大小0.1M
设计风格:--
CAD版本:CAD2010
包含文件:CAD
授权独家