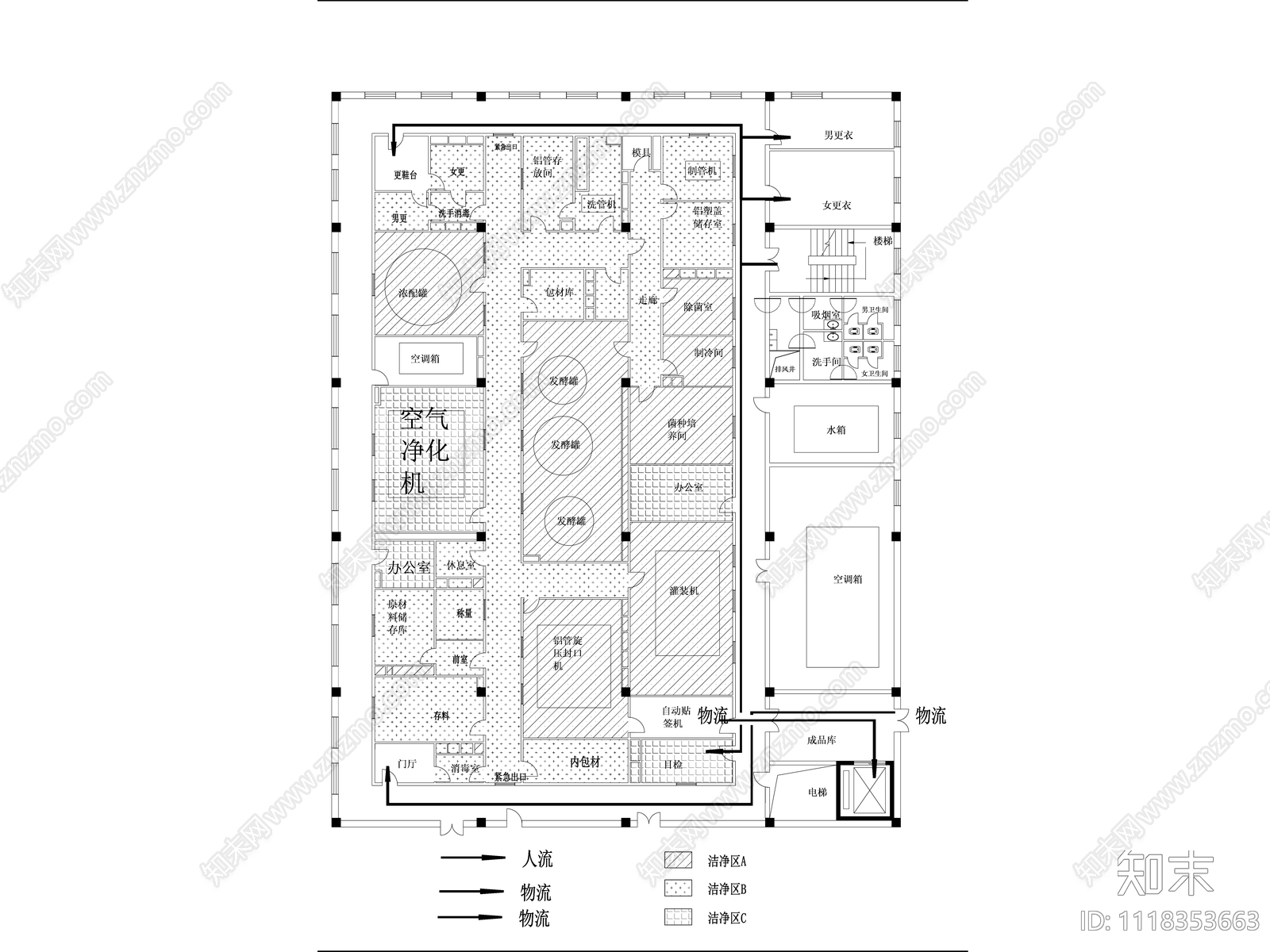
啤酒工厂室内布置图施工图下载【ID:1118353663】

啤酒工厂室内布置图CAD下载

ID: 1118353663
复制
上传作者
熬夜也画图熬夜也画图

上传时间2022-08-01

文件大小0.08M

设计风格:--

CAD版本:CAD2014

包含文件:CAD

授权普通

立即下载
收藏
分享
举报
相关推荐
综合
工装
其他工装空间
办公空间
教育空间
文化空间
民宿
商业空间
餐饮空间
休闲娱乐空间
展厅