CAD频道
CAD图库
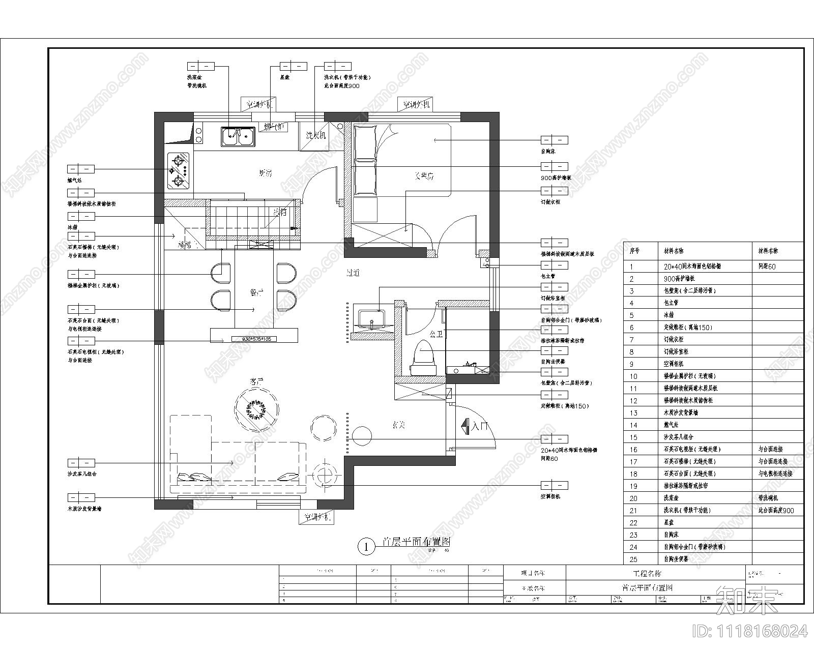
公寓首层及夹层室内设计施工图
1/
6
Previous
Next
公寓首层及夹层室内设计CADCAD下载
ID: 1118168024
复制
上传作者
Ken
上传时间
2022-07-29
文件大小
1.4M
设计风格:
现代简约
CAD版本:
--
包含文件:
CAD
授权
普通
立即下载
收藏
分享
举报
相关推荐
综合
公寓
loft公寓
单身公寓
复式公寓
酒店公寓