CAD频道
CAD图库
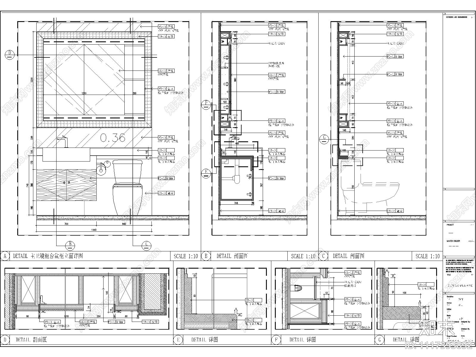
大湾区高层住宅批量精装修室内设计竣工图 平层
1/
5
Previous
Next
大湾区高层住宅批量精装修室内设计竣工图CAD下载
ID: 1117393892
复制
上传作者
Ken
上传时间
2022-07-18
文件大小
37.16M
设计风格:
现代简约
CAD版本:
CAD2016
包含文件:
CAD
授权
普通
立即下载
收藏
分享
举报
相关推荐
综合
平层
大平层
小户型平层
超大型平层