CAD频道
CAD图库
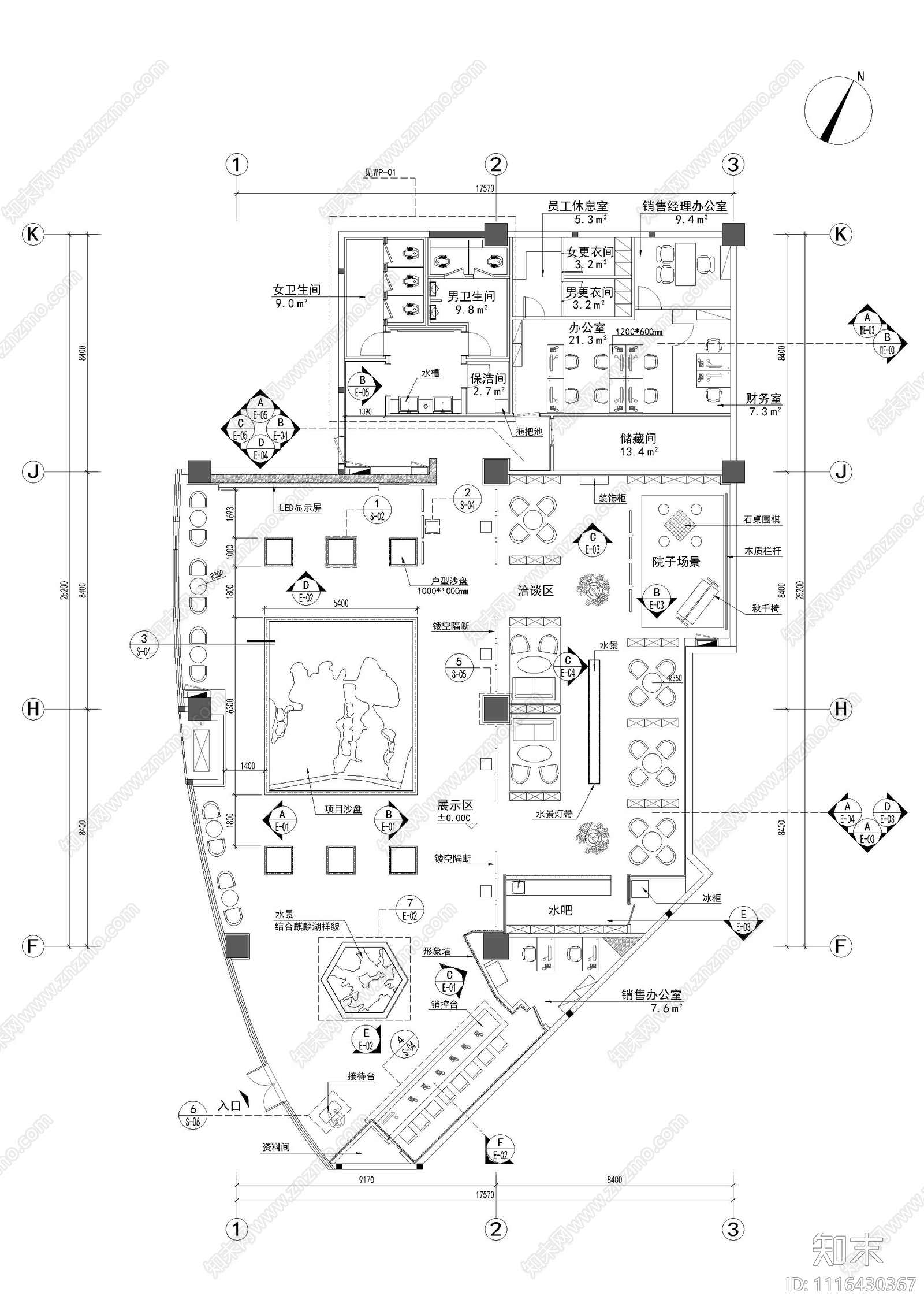
城市展厅CAD施工图 展销厅
1/
5
Previous
Next
城市展厅CAD下载
ID: 1116430367
复制
上传作者
一一一一
上传时间
2022-07-04
文件大小
17.68M
设计风格:
--
CAD版本:
CAD2004
包含文件:
CAD
授权
独家
立即下载
收藏
分享
举报
相关推荐
综合
展厅
展台
企业展厅
文化展厅
科技展厅
家具展厅
汽车展厅
服装展厅
展馆
其他展厅