CAD频道
CAD图库
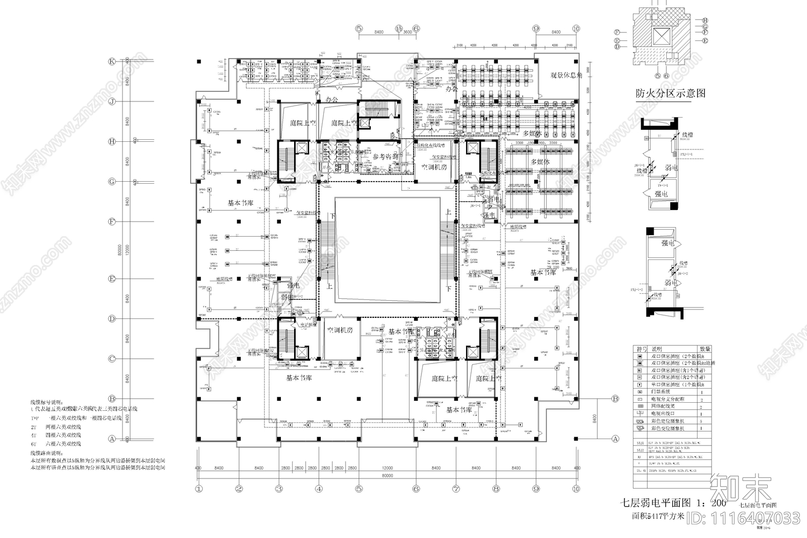
7层大学图书馆弱电设计图施工图 建筑电气
1/
5
Previous
Next
7层大学图书馆弱电设计图CADCAD下载
ID: 1116407033
复制
上传作者
小趴菜园
上传时间
2022-07-04
文件大小
4.81M
设计风格:
--
CAD版本:
CAD2004
包含文件:
CAD
授权
独家
立即下载
收藏
分享
举报
相关推荐
综合
文化空间
图书馆
体育馆
博物馆
其他文化空间
美术馆
游泳馆
科技馆
剧院